Bureaux
Réf. 9270234 RUE DAVIOUD
PARIS, 75016
12 068,96 € / m²
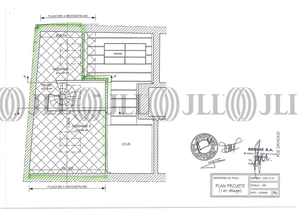
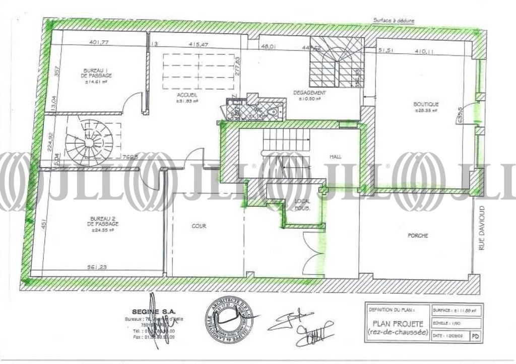
- Surface174 m² (env. 17 postes)
- DisponibilitéImmédiate
- Description
- Prestations & Services
- DPE
- Localisation et Transports
- Plans
- Brochure
- Consultant
- Nous contacter
Description
En plein coeur du 16ème arrondissement, au pied du métro Ranelagh, JLL vous propose à la vente une magnifique petite maison d'architecte sur 3 niveaux de 174m² en excellent état, offrant de beaux volumes, une belle luminosité et un bel espace extérieur. Ces locaux conviendraient parfaitement à toutes les activités liées à la communication, au marketing, au digital et à la production audiovisuelle.
Les informations sur les risques auxquels ce bien est exposé sont disponibles sur le site Géorisques : www.georisques.gouv.fr
Prix de Vente : 2 100 000 €/HD HH
Surface disponible
DPE
Diagnostic en cours de réalisation
Localisation et Transports
. Métro : Ranelagh (ligne 9)
Consultant

Marc Schumann
Détails de l'agent
Informations Marchés
Le marché locatif
34 RUE DAVIOUD, 75016
Loyer moyen *
12 068,96 € / m²
54 offres à louerEn savoir plus* Moyenne calculée sur la base des transactions réalisées au cours des 12 derniers mois







