Bureaux
Réf. 9728144-46 BOULEVARD DE MAGENTA
PARIS, 75010
12 318,84 € / m²
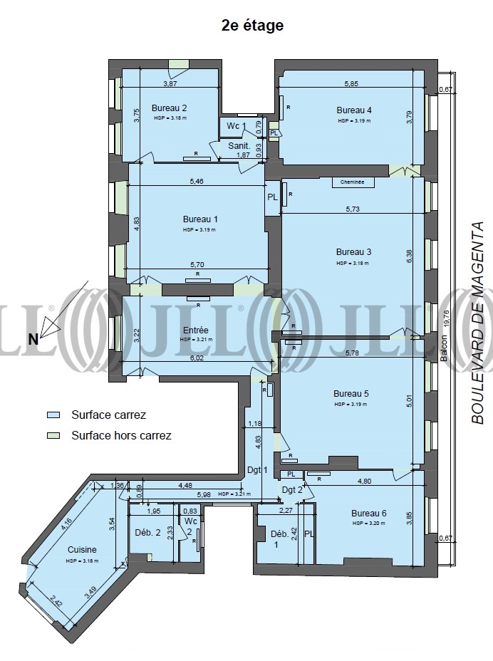
- Surface207 m² (env. 20 postes)
- DisponibilitéImmédiate
- Description
- Prestations & Services
- DPE
- Localisation et Transports
- Plan
- Brochure
- Consultant
- Nous contacter
Description
Dans un immeuble haussmannien un plateau de bureaux entièrement rénové prêt à l'emploi, JLL vous propose à la vente ce bien idéalement situé à deux pas de la place de la République et de la gare de l'Est avec ses commerces et nombreux transports.
Les informations sur les risques auxquels ce bien est exposé sont disponibles sur le site Géorisques : www.georisques.gouv.fr
Surface disponible
DPE
Diagnostic en cours de réalisation
Localisation et Transports
. Métro : Gare de l'Est (lignes 4, 5, 7)
. Métro : Château d'Eau (ligne 4)
. Métro : Jacques Bonsergent (ligne 5)
. Métro : Château d'Eau (ligne 4)
. Métro : Jacques Bonsergent (ligne 5)
Consultant

Fabien Lozoya
Détails de l'agent
Informations Marchés
Le marché locatif
44-46 BOULEVARD DE MAGENTA, 75010
Loyer moyen *
12 318,84 € / m²
53 offres à louerEn savoir plus* Moyenne calculée sur la base des transactions réalisées au cours des 12 derniers mois







