Bureaux
Réf. 940979 PASSAGE DUBAIL
PARIS, 75010
12 244,90 € / m²
- Surface253 m² (env. 25 postes)
- DisponibilitéImmédiate
- Description
- Prestations & Services
- DPE
- Localisation et Transports
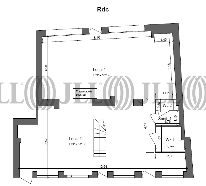
- Plans
- Brochure
- Consultant
- Nous contacter
Description
En plein cœur du 10ème arrondissement, à proximité de la gare de l’Est, JLL vous propose, A L’ACQUISITION, un petit bâtiment en R+1 entièrement restructuré et rénové, au fonctionnement indépendant. Le quartier est très bien desservi par les transports en commun et bénéficient de nombreux restaurants et commerces. Possibilité d’un ERP 5 avec un accès PMR uniquement en rez-de-chaussée.
Les informations sur les risques auxquels ce bien est exposé sont disponibles sur le site Géorisques : www.georisques.gouv.fr
Surface disponible
DPE
Diagnostic en cours de réalisation
Localisation et Transports
. Métro : Gare de l'Est (lignes 4, 5, 7) à 230 m
. Métro : Château d'Eau (ligne 4) à 230 m
. Métro : Jacques Bonsergent (ligne 5) à 270 m
. SNCF : Gare de l'Est
. Bus : Nombreuses lignes
. Vélib's
. Métro : Château d'Eau (ligne 4) à 230 m
. Métro : Jacques Bonsergent (ligne 5) à 270 m
. SNCF : Gare de l'Est
. Bus : Nombreuses lignes
. Vélib's
Consultant

Marc Schumann
Détails de l'agent
Informations Marchés
Le marché locatif
9 PASSAGE DUBAIL, 75010
Loyer moyen *
12 244,90 € / m²
58 offres à louerEn savoir plus* Moyenne calculée sur la base des transactions réalisées au cours des 12 derniers mois







