Bureaux
Réf. 9628351-55 AVENUE MONTAIGNE
PARIS, 75008
29 940,11 € / m²
- Surface167 m² (env. 16 postes)
- DisponibilitéImmédiate
- Description
- Prestations & Services
- DPE
- Localisation et Transports
- Plans
- Brochure
- Consultant
- Nous contacter
Description
JLL vous propose à la vente une surface de bureaux idéale pour un showroom située en plein milieu de la prestigieuse avenue Montaigne.
Les informations sur les risques auxquels ce bien est exposé sont disponibles sur le site Géorisques : www.georisques.gouv.fr
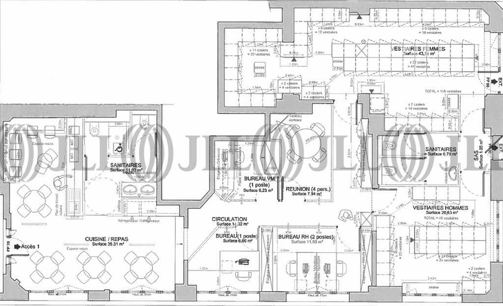
Surface disponible
DPE
Diagnostic en cours de réalisation
Localisation et Transports
. Métro : Franklin D Roosevelt (lignes 1, 9)
. Métro : Alma-Marceau (ligne 9)
. Métro : Champs-Elysées - Clémanceau (lignes 1, 13)
. Bus : Lignes 28, 42, 63, 72, 73, 80, 83, 92, 93
. Métro : Alma-Marceau (ligne 9)
. Métro : Champs-Elysées - Clémanceau (lignes 1, 13)
. Bus : Lignes 28, 42, 63, 72, 73, 80, 83, 92, 93
Consultant

Guillaume Faure
Détails de l'agent
Informations Marchés
Le marché locatif
51-55 AVENUE MONTAIGNE, 75008
Loyer moyen *
29 940,11 € / m²
191 offres à louerEn savoir plus* Moyenne calculée sur la base des transactions réalisées au cours des 12 derniers mois





