Bureaux
Réf. 838308 RUE FEROU
PARIS, 75006
Nous consulter
- Surface1 135 m² (env. 113 postes)
- DisponibilitéImmédiate
- Description
- Prestations & Services
- DPE
- Localisation et Transports
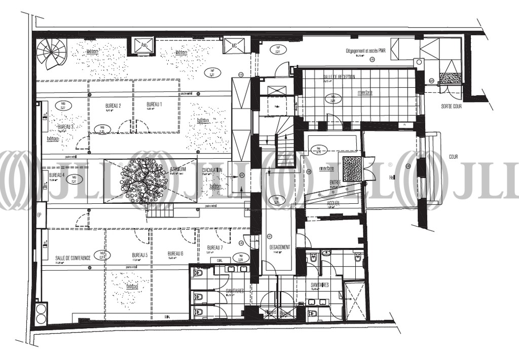
- Plans
- Brochure
- Consultant
Description
JLL vous propose des bureaux à la location ou à l’acquisition à PARIS (75006). Idéalement situé à proximité des transports en commun: métro lignes 4, 12 ainsi que de nombreuses lignes de bus.
Les informations sur les risques auxquels ce bien est exposé sont disponibles sur le site Géorisques : www.georisques.gouv.fr
Surface disponible
DPE
Diagnostic en cours de réalisation
Localisation et Transports
. Métro : Saint Sulpice (ligne 4)
. Métro : Rennes (ligne 12)
. Bus : Lignes 58, 84, 89
. Vélib' : 26 rue Guynemer
. Métro : Rennes (ligne 12)
. Bus : Lignes 58, 84, 89
. Vélib' : 26 rue Guynemer
Consultant

Luc Herviou
Détails de l'agent
Informations Marchés
Le marché locatif
8 RUE FEROU, 75006
10 offres à louerEn savoir plus
* Moyenne calculée sur la base des transactions réalisées au cours des 12 derniers mois