32-36 PASSAGE DU CAIRE
PARIS, 75002
10 050,25 € / m²
- Surface398 m² divisibles dès 106 m² (env. 39 postes)
- DisponibilitéImmédiate
- Description
- Prestations & Services
- DPE
- Localisation et Transports
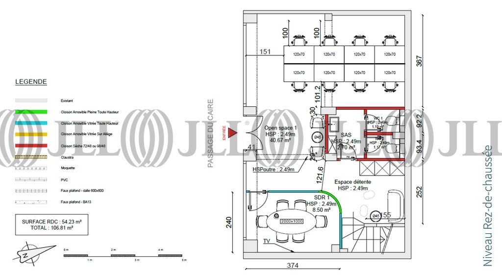
- Plans
- Brochure
- Consultant
- Nous contacter
Description
Dans le passage du Caire, immeuble de bureaux indépendant au style industriel, entièrement rénové en 2022 aménagé sur 3 niveaux et un sous-sol. Bureaux atypiques avec rooftop de plus de 60 m ² au dernier étage climatisés et en open space. La vente comporte 2 immeubles en pleine propriété actuellement séparés mais pouvant être reliés pour la vente. Le passage est géré par une ASL mais les immeubles ne sont pas en copropriété. Localisation centrale au cœur du quartier du Sentier, a` proximité immédiate des transports et commerces.
Les informations sur les risques auxquels ce bien est exposé sont disponibles sur le site Géorisques : www.georisques.gouv.fr
Prix de vente de l'ensemble des bureaux : 4 000 000 € net vendeur
32 Caire : 1 000 000 €
36 Caire : 3 000 000 €
Surface disponible
DPE
Diagnostic en cours de réalisation
Localisation et Transports
. Métro : Strasbourg Saint Denis (lignes 4, 8, 9)
. RER A, B, D : Châtelet - Les Halles
. Bus : Lignes 20, 38, 39, N13, N14
Consultant

Luc Herviou
Détails de l'agent







