40-42 RUE BARBES
MONTROUGE, 92120
5 500 € / m²
- Surface290 m² (env. 29 postes)
- DisponibilitéImmédiate
- Description
- Prestations & Services
- DPE
- Localisation et Transports
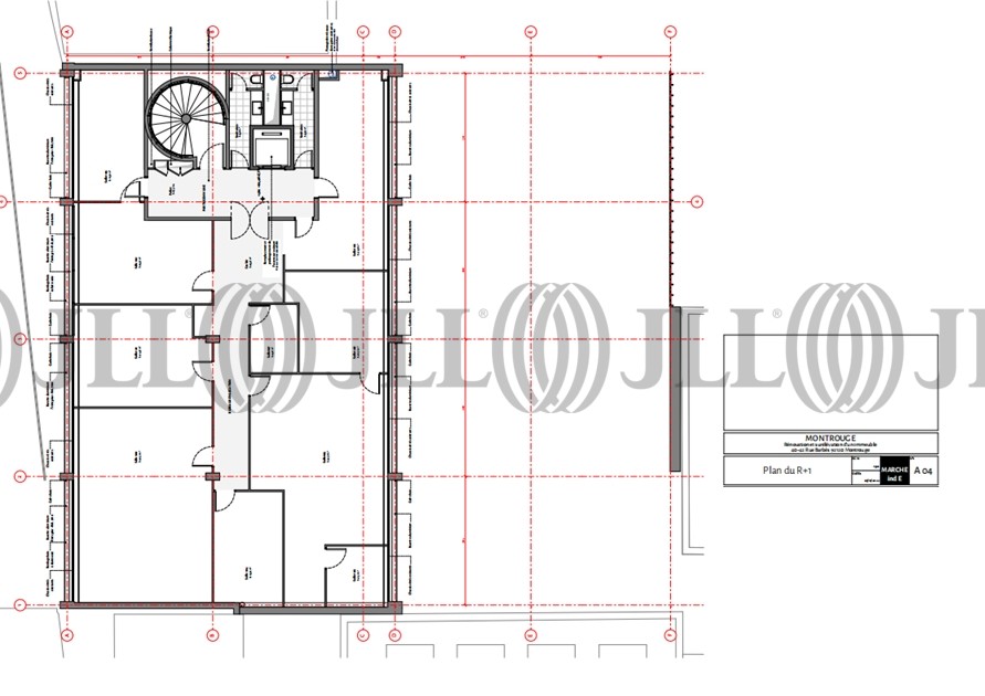
- Plan
- Brochure
- Consultant
- Nous contacter
Description
Bureaux à louer/vendre au 42 Rue Barbès, Montrouge (92120)
Découvrez une surface rénovée et immédiatement disponible de 290 m² au cœur de Montrouge, parfaitement adaptée aux besoins des entreprises. Situé dans un immeuble équipé d'un ascenseur, d'un monte-charge et d'une terrasse privative, cet espace offre des bureaux cloisonnés au design optimisé. Vous y trouverez un faux plafond, des convecteurs électriques, une climatisation double flux, un câblage RJ45 et une fibre optique. Les prestations incluent également une cuisine équipée et une salle de réunion spacieuse.
Idéalement connecté, l'actif se trouve à proximité immédiate du métro Porte d'Orléans (ligne 4), du RER Gentilly (ligne B), de nombreux bus et du tramway T3. L'accès routier est facilité par le boulevard périphérique à seulement 200 mètres.
Les informations sur les risques liés à ce bien est exposé sont disponibles sur le site Géorisques : [www.georisques.gouv.fr](http://www.georisques.gouv.fr)
Surface disponible
DPE
Diagnostic en cours de réalisation
Localisation et Transports
. RER : Station "Gentilly" ligne B
. Bus : Nombreux bus à proximité
. Tramway : Station "Porte d'Orléans" ligne T3
. Accès routier : BP à 200m
Consultant

Gauthier Daccord
Détails de l'agent







