
FAUBOURG 45
45 RUE DE L'EST
BOULOGNE BILLANCOURT, 92100
Nous consulter
- Surface833 m² (env. 83 postes)
- Disponibilité1e trim. 2027
- Description
- Prestations & Services
- DPE
- Localisation et Transports
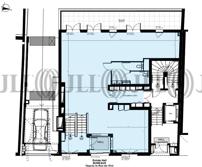
- Plans
- Brochure
- Consultant
- Nous contacter
Description
Bureaux à vendre à FAUBOURG 45
Découvrez FAUBOURG 45, un ensemble de bureaux situé au 45 RUE DE L'EST à BOULOGNE BILLANCOURT (92100), disponible à partir du 30 septembre 2026. Cet actif, d'une surface totale de 833 m², propose des prestations de qualité dans un environnement optimisé pour le travail. L'immeuble est équipé d'un ascenseur et garantit la sécurité grâce à la présence d'un gardien. Les bureaux, entièrement rénovés, bénéficient d'un chauffage collectif, d'une climatisation performante et d'un câblage informatique adapté aux besoins des entreprises modernes. Son emplacement est également un atout majeur grâce à un accès rapide au métro Boulogne - Jean Jaurès (ligne 10), assurant une excellente desserte pour vos collaborateurs et clients.
Pour plus d'informations sur ce bien, contactez-nous dès maintenant. Les informations sur les risques liés à ce bien est exposé sont disponibles sur le site Géorisques : www.georisques.gouv.fr.
Surface disponible
DPE
Diagnostic en cours de réalisation
Localisation et Transports
Consultant

Gauthier Daccord
Détails de l'agent