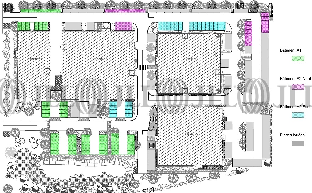
GERLAND TECHNOPARK - BATIMENT A1
39-43 RUE SAINT JEAN DE DIEU
LYON, 69007
130 € / m²
- Surface171 m²
- DisponibilitéImmédiate
- Description
- Prestations & Services
- DPE
- Localisation et Transports
- Plans
- Brochure
- Consultant
- Nous contacter
Description
A LOUER - Lyon 7ème arrondissement (69007)
JLL vous propose, à la location, des locaux à usage d’activité / stockage avec bureaux d’accompagnement, au sein d'un parc d'activités récent. Entrepôt fonctionnel bénéficiant d'accès plain-pied et d'emplacements de parking. Site clos et sécurisé, à proximité des axes autoroutiers (BP, A6, A7, A43) et des transports en commun (bus, métro). Très belle opportunité JLL, à visiter rapidement !
Les informations sur les risques auxquels ce bien est exposé sont disponibles sur le site Géorisques : www.georisques.gouv.fr
Les charges comprennent : Ascenseur - ASL - Assurance bailleur - Gestion technique - Contrat multitech - Contrôle règlementaire
Surface disponible
DPE
Diagnostic en cours de réalisation
Localisation et Transports
. boulevard périphérique
. autoroutes A6, A7 et A43
Aéroport de Lyon-Saint Exupéry en moins de 30 minutes en voiture
Consultant

Jules Dumontet
Détails de l'agent





