WORK AND SHARE PUTEAUX
100-101 TERRASSE BOIELDIEU
PUTEAUX, 92800
Nous consulter
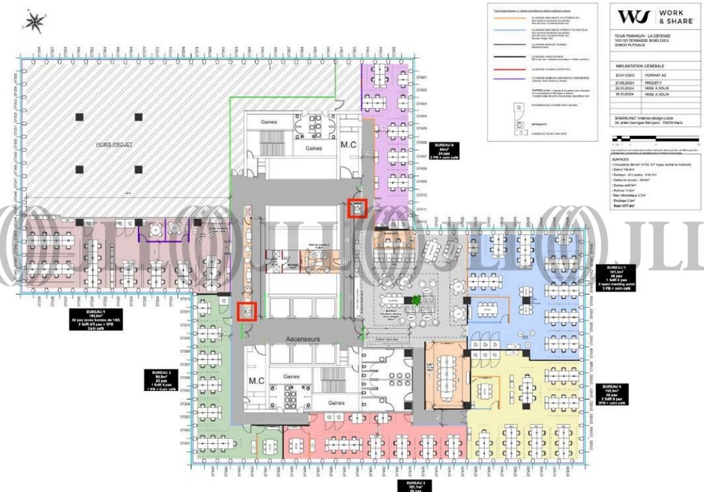
- Surface2 000 m² divisibles dès 10 m² (env. 200 postes)
- DisponibilitéImmédiate
- Description
- Prestations & Services
- DPE
- Localisation et Transports
- Plan
- Brochure
- Consultant
- Nous contacter
Description
Location de bureaux à Puteaux (92800). Au 6ème étage de la Tour Franklin, nous vous proposons des surfaces de bureaux à la location en prestation de services. Un espace pour offrir confort, convivialité et fonctionnalité, pouvant accueillir jusqu'à 215 collaborateurs. Vous bénéficierez également d'un espace d'accueil et de conciergerie, d'une salle de babyfoot, de plusieurs espaces détente et d'un grand bistrot. Les bureaux sont lumineux et spacieux.
Les informations sur les risques auxquels ce bien est exposé sont disponibles sur le site Géorisques : www.georisques.gouv.fr
- Loyer : à partir de 550 € HT/poste/mois
- Frais d’entrée : 80 €/poste
- Contrat de prestation de services
- Engagement à partir de 6 mois
Engagement flexible, en contrat de prestation de services qui inclut le loyer, les charges, le mobilier, l'internet, le ménage etc.
Surface disponible
DPE
Diagnostic en cours de réalisation
Localisation et Transports
. RER A : Grande Arche
. SNCF : "La Défense" vers "Versaille / St Lazare"
. Tramval T2 : La Défense
. Accès routiers : A14, A86, N13
Consultant

Julie Klein
Détails de l'agent





