22-24 AVENUE DE SAINT OUEN
PARIS, 75018
Nous consulter
- Surface1 023 m² divisibles dès 250 m² (env. 102 postes)
- DisponibilitéImmédiate
- Description
- Prestations & Services
- DPE
- Localisation et Transports
- Plan
- Brochure
- Consultant
- Nous contacter
Description
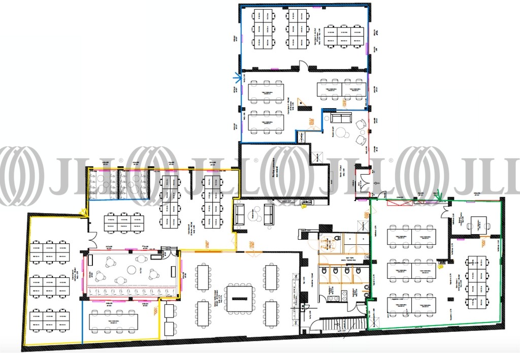
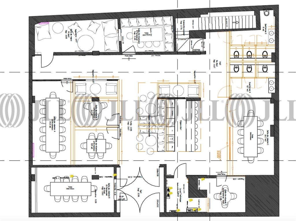
Découvrez ces 1 023 m² de bureaux entièrement rénovés, parfaitement aménagés et prêts à accueillir votre entreprise dès aujourd'hui. Situés au 22-24 avenue de Saint-Ouen, ces espaces de travail modernes offrent une configuration optimale avec 130 postes divisibles à partir de 25 postes de travail déjà installés.
La localisation constitue un avantage stratégique. Bien desservi par les transports en commun avec le métro La Fourche (ligne 13), le RER Pont Cardinet (ligne L) et de nombreuses lignes de bus, ce site facilite les déplacements de vos équipes et clients.
La répartition intelligente des espaces sur plusieurs niveaux : plateau principal de 670 m², sous-sol de 217 m² et rez-de-chaussée de 136 m², offre une flexibilité d'organisation remarquable pour s'adapter parfaitement à votre structure d'entreprise.
Les informations sur les risques auxquels ce bien est exposé sont disponibles sur le site Géorisques : www.georisques.gouv.fr
Loyer : 26 000€/mois HT pour 86 postes
Loyer m²/an (HT/HC) : 302 € CC Taxes comprises
Surface disponible
DPE
Diagnostic en cours de réalisation
Localisation et Transports
Métro : Brochant (ligne 13) à 400 m
Porte de Saint Ouen (lignes 13 et 14) à 600 m
Place de Clichy (lignes 2 et 13) à 800 m
Consultant

Louis Auchroy
Détails de l'agent







