Bureaux
Réf. 100957Nouveau
9 AVENUE DE VILLIERS
PARIS, 75017
470 € / m²
- Surface200 m² (env. 20 postes)
- Disponibilité4e trim. 2026
- Description
- Prestations & Services
- DPE
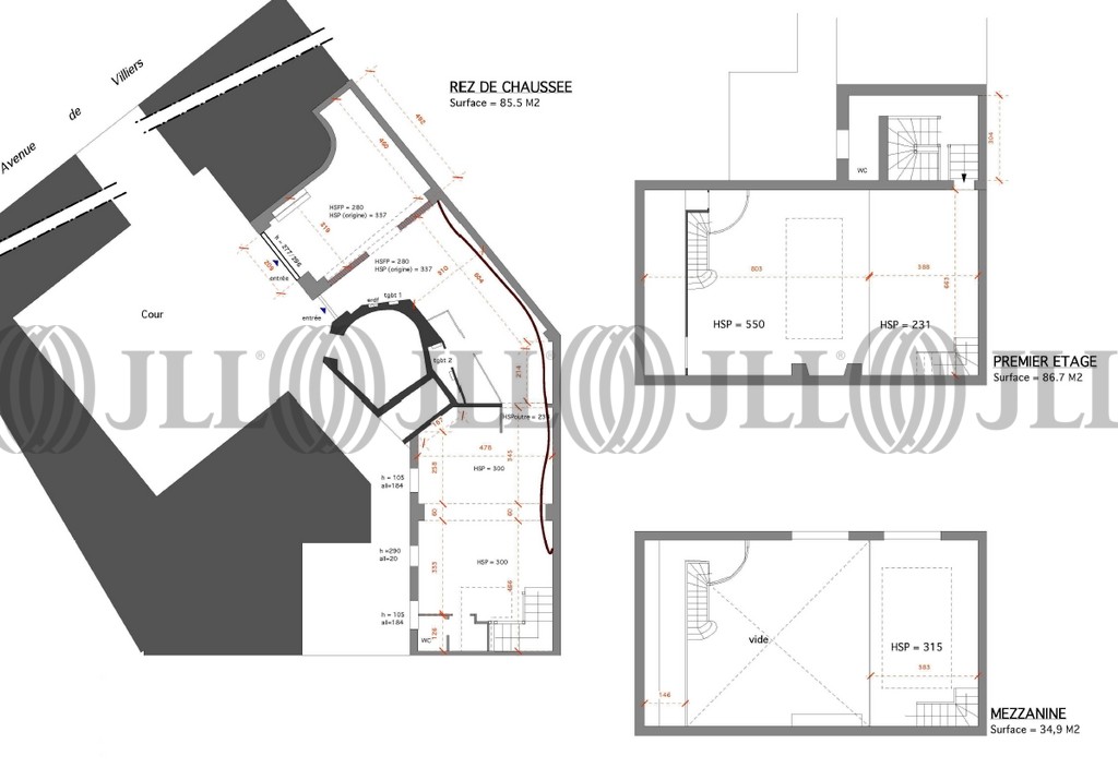
- Localisation et Transports
- Plan
- Brochure
- Consultant
- Nous contacter
Description
Située à toute proximité du Parc Monceau dans le cœur du QCA, nous vous proposons une surface de bon standing. Excellente desserte en transport en commun. La qualité des prestations proposées alliée au dynamisme du quartier viendra assurer le confort de leurs futurs occupants.
Les informations sur les risques auxquels ce bien est exposé sont disponibles sur le site Géorisques : www.georisques.gouv.fr
Surface disponible
DPE
Diagnostic en cours de réalisation
Localisation et Transports
. Métro : Stations ligne n° 3 station "Malesherbes" ou "Pereire" (Ligne 3) et "Villiers" (Lignes 2, 3)
. RER : Station "Pereire" (Ligne C)
. Bus : Ligne n° 31
. RER : Station "Pereire" (Ligne C)
. Bus : Ligne n° 31
Consultant

Matthieu Doucet
Détails de l'agent
Informations Marchés
Le marché locatif
9 AVENUE DE VILLIERS, 75017
Loyer moyen *
470 € / m²
74 offres à louerEn savoir plus* Moyenne calculée sur la base des transactions réalisées au cours des 12 derniers mois







