Bureaux
Réf. 100276Mise à jour
92 AVENUE DES TERNES
PARIS, 75017
680 € / m²
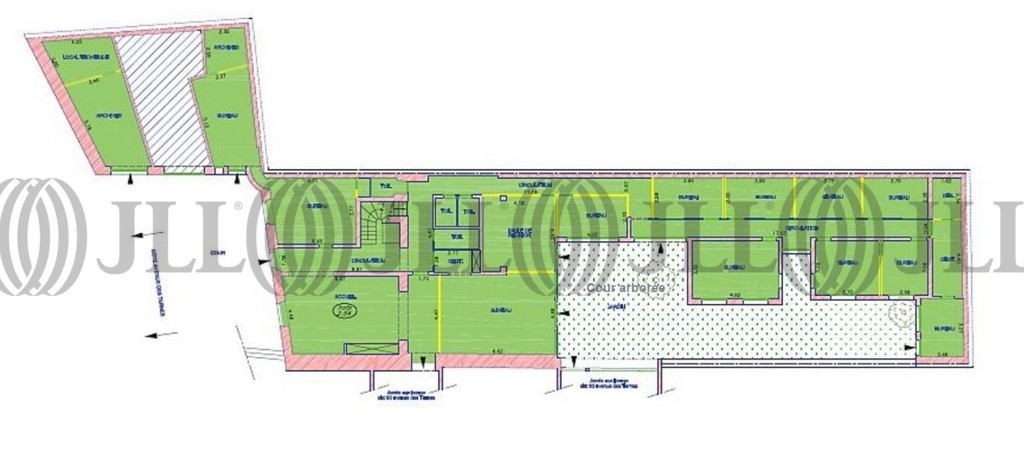
- Surface498 m² (env. 49 postes)
- DisponibilitéImmédiate
- Description
- Prestations & Services
- DPE
- Localisation et Transports
- Plans
- Brochure
- Consultant
- Nous contacter
Description
JLL vous propose un magnifique hôtel particulier à la location à proximité immédiate de Porte Maillot. Ces bureaux disposent de deux grandes terrasses privatives et un jardin arboré.
Les informations sur les risques auxquels ce bien est exposé sont disponibles sur le site Géorisques : www.georisques.gouv.fr
Surface disponible
DPE
Diagnostic en cours de réalisation
Localisation et Transports
. Métro : Porte Maillot (ligne 1)
. Métro : Charles de Gaulle - Etoile (lignes 2, 6)
. RER C : Neuilly - Porte Maillot
. RER A : Charles de Gaulle - Etoile
. Bus : Ligne 43
. Vélib : 10 rue Bélidor
. Métro : Charles de Gaulle - Etoile (lignes 2, 6)
. RER C : Neuilly - Porte Maillot
. RER A : Charles de Gaulle - Etoile
. Bus : Ligne 43
. Vélib : 10 rue Bélidor
Consultant

Guillaume Rigaut
Détails de l'agent
Informations Marchés
Le marché locatif
92 AVENUE DES TERNES, 75017
Loyer moyen *
680 € / m²
75 offres à louerEn savoir plus* Moyenne calculée sur la base des transactions réalisées au cours des 12 derniers mois







