Bureaux
Réf. 100220Exclusivité JLL
148 RUE DE COURCELLES
PARIS, 75017
Nous consulter
- Surface100 m² (env. 10 postes)
- DisponibilitéImmédiate
- Description
- Prestations & Services
- DPE
- Localisation et Transports
- Plan
- Brochure
- Consultant
- Nous contacter
Description
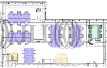
JLL vous propose en en exclusivité une sous-location clé en main complétement indépendante de 28 postes de travail équipés (écrans, casiers, accès internet, etc.). Une cuisine partagée sera également accessible tout comme deux terrasses
Les informations sur les risques auxquels ce bien est exposé sont disponibles sur le site Géorisques : www.georisques.gouv.fr
Loyer : 10k / mois pendant 6 mois puis 16 500 € / mois
Fin de la sous-location : 31/10/2027
Charges comprises mais HT pour le montant des loyers
Surface disponible
DPE
Diagnostic en cours de réalisation
Localisation et Transports
. Métro : Pereire (ligne 3) à 220 m
. Métro : Wagram (ligne 3) à 300 m
. RER C : Pereire - Levallois à 350 m
. Bus : Lignes 30, 31, 94, 84, 92, 93
. Accès routier : Boulevard Périphérique, à moins de 5 mn . SNCF : Gare Saint Lazare . Bus : Lignes n° 30-31-94 et 84
. Accès routier : BP, à moins de 5 mn par le boulevard Malesherbes
. Métro : Wagram (ligne 3) à 300 m
. RER C : Pereire - Levallois à 350 m
. Bus : Lignes 30, 31, 94, 84, 92, 93
. Accès routier : Boulevard Périphérique, à moins de 5 mn . SNCF : Gare Saint Lazare . Bus : Lignes n° 30-31-94 et 84
. Accès routier : BP, à moins de 5 mn par le boulevard Malesherbes
Consultant

Guillaume Rigaut
Détails de l'agent
Informations Marchés
Le marché locatif
148 RUE DE COURCELLES, 75017
75 offres à louerEn savoir plus
* Moyenne calculée sur la base des transactions réalisées au cours des 12 derniers mois







