Bureaux
Réf. 94118121 AVENUE DE VILLIERS
PARIS, 75017
765 € / m²
- Surface341 m² (env. 34 postes)
- DisponibilitéImmédiate
- Description
- Prestations & Services
- DPE
- Localisation et Transports
- Plans
- Brochure
- Consultant
- Nous contacter
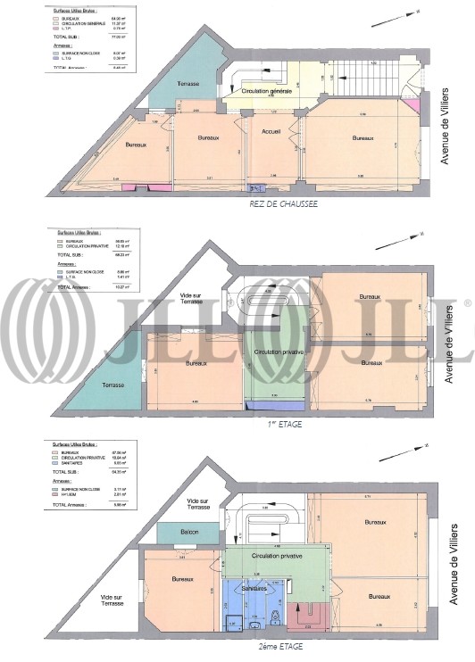
Description
Situé dans le quartier de la Plaine Monceau, JLL vous propose à la location un hôtel particulier en brique et pierre de taille.
Le bien comporte 14 salles dont une salle de conférence, 3 terrasses, un local serveur, une cuisine. L'actif est équipé de moquette au sol et de parquet dans les bureaux.
Les informations sur les risques auxquels ce bien est exposé sont disponibles sur le site Géorisques : www.georisques.gouv.fr
Surface disponible
DPE
Diagnostic en cours de réalisation
Localisation et Transports
. Métro : Pereire (ligne 3)
. RER C : Pereire Levallois
. Bus : Nombreuses lignes
. Tramway : Porte de Champerret (ligne T3b)
. RER C : Pereire Levallois
. Bus : Nombreuses lignes
. Tramway : Porte de Champerret (ligne T3b)
Consultant

Guillaume Moreau
Détails de l'agent
Informations Marchés
Le marché locatif
121 AVENUE DE VILLIERS, 75017
Loyer moyen *
765 € / m²
75 offres à louerEn savoir plus* Moyenne calculée sur la base des transactions réalisées au cours des 12 derniers mois







