4-10 AVENUE DE LA GRANDE ARMEE
PARIS, 75017
1 150 € / m²
- Surface1 481 m² (env. 148 postes)
- DisponibilitéImmédiate
- Description
- Prestations & Services
- DPE
- Localisation et Transports
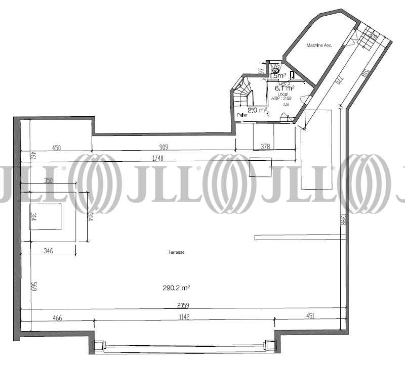
- Plans
- Brochure
- Consultant
- Nous contacter
Description
Découvrez une opportunité exceptionnelle à proximité de la Place de l'Étoile : un espace de bureaux de 1 481 m² au 6ème étage bénéficiant d’un rooftop privatif de 300 m² offrant une vue imprenable sur Paris. Cet espace modulable se compose de deux lots (1197 m² et 284 m²), promis à une rénovation complète par le propriétaire. Le lot principal se distingue également par ses deux terrasses privatives (52 m²). Profitez de volumes généreux avec une hauteur sous plafond remarquable, d'une flexibilité d'aménagement optimale et d'un emplacement stratégique à proximité immédiate des transports et commerces. Une rare occasion de s'implanter dans ce quartier convoité, idéale pour les entreprises désireuses d'allier prestige, fonctionnalité et bien-être au cœur de la capitale.
Les informations sur les risques auxquels ce bien est exposé sont disponibles sur le site Géorisques : www.georisques.gouv.fr
Loyer : R+6 : 1 197 m² : 980,50 €/m²/an + 52 m² de terrasse
R+6 : 284 m² : 1 150 €/m²/an + 300 m² de terrasse
Surface disponible
DPE
Diagnostic en cours de réalisation
Localisation et Transports
. RER A : Charles de Gaulle - Etoile
Consultant

Antonia Zuccarelli
Détails de l'agent







