Bureaux
Réf. 8270623-25 RUE DE PRONY
PARIS, 75017
Nous consulter
- Surface1 118 m² divisibles dès 368 m² (env. 111 postes)
- DisponibilitéImmédiate
- Description
- Prestations & Services
- DPE
- Localisation et Transports
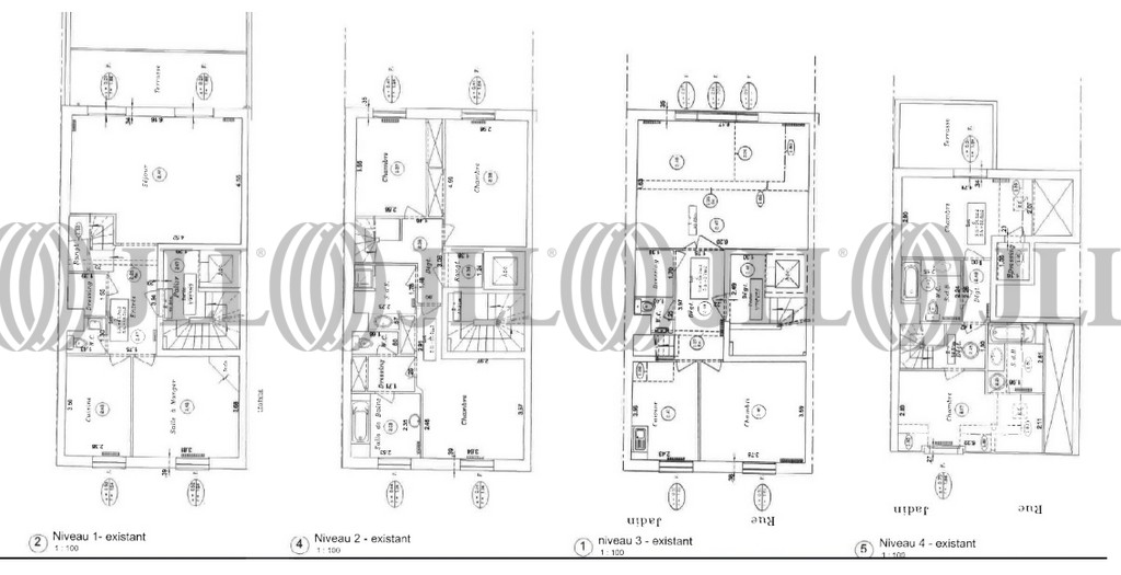
- Plans
- Brochure
- Consultant
- Nous contacter
Description
JLL vous propose à la location un immeuble indépendant de 1 118 m² entièrement rénové et restructuré dans le prestigieux 17e arrondissement, à proximité du Parc Monceau. Cet espace de bureaux climatisés allie harmonieusement nature et modernité grâce à son jardin privatif et sa terrasse, offrant un cadre de travail d'exception. Les espaces modulables, comprenant plusieurs salles de réunion, permettent une personnalisation optimale de votre environnement professionnel.
Les informations sur les risques auxquels ce bien est exposé sont disponibles sur le site Géorisques : www.georisques.gouv.fr
Bail jusqu’à 24 mois
Surface disponible
DPE
Diagnostic en cours de réalisation
Localisation et Transports
. Métro : Monceau (ligne 2)
. Métro : Malesherbes (ligne 3)
. RER C : Pereire Levallois
. Bus : Nombreuses lignes
. Métro : Malesherbes (ligne 3)
. RER C : Pereire Levallois
. Bus : Nombreuses lignes
Consultant

Thibault Philippe
Détails de l'agent
Informations Marchés
Le marché locatif
23-25 RUE DE PRONY, 75017
75 offres à louerEn savoir plus
* Moyenne calculée sur la base des transactions réalisées au cours des 12 derniers mois







