Bureaux
Réf. 96819101-103 BOULEVARD MURAT
PARIS, 75016
640 € / m²
- Surface941 m² divisibles dès 630 m² (env. 94 postes)
- DisponibilitéNous consulter
- Description
- Prestations & Services
- DPE
- Localisation et Transports
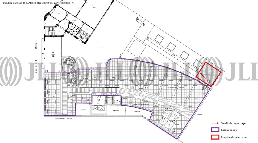
- Plans
- Brochure
- Consultant
- Nous contacter
Description
Au coeur du 16ème arrondissement de Paris, à proximité du quartier central des affaires au sein d'un immeuble de bureau et à proximité immédiate de porte de Saint Cloud , JLL vous propose un plateau de 940,5m² au 1er étage des bureaux mixte Laboratoire /bureaux. Les locaux sont bon état d’usage, climatisés et bénéficient d'un plan rationnel.
Les informations sur les risques auxquels ce bien est exposé sont disponibles sur le site Géorisques : www.georisques.gouv.fr
Surface disponible
DPE
Diagnostic en cours de réalisation
Localisation et Transports
. Métro : Porte de Saint Cloud (ligne 9) à 300 m
. Bus : Lignes 22, 42, 62, 72
. Accès routiers : Boulevard périphérique Porte de Saint Cloud, A13 et N118
. Vélib' : station n°°16118 (5mn à pied)
. Bus : Lignes 22, 42, 62, 72
. Accès routiers : Boulevard périphérique Porte de Saint Cloud, A13 et N118
. Vélib' : station n°°16118 (5mn à pied)
Consultant

Harold Deschamps
Détails de l'agent
Informations Marchés
Le marché locatif
101-103 BOULEVARD MURAT, 75016
Loyer moyen *
640 € / m²
53 offres à louerEn savoir plus* Moyenne calculée sur la base des transactions réalisées au cours des 12 derniers mois







