Bureaux
Réf. 98189Mise à jour
96 RUE DES ENTREPRENEURS
PARIS, 75015
623 € / m²
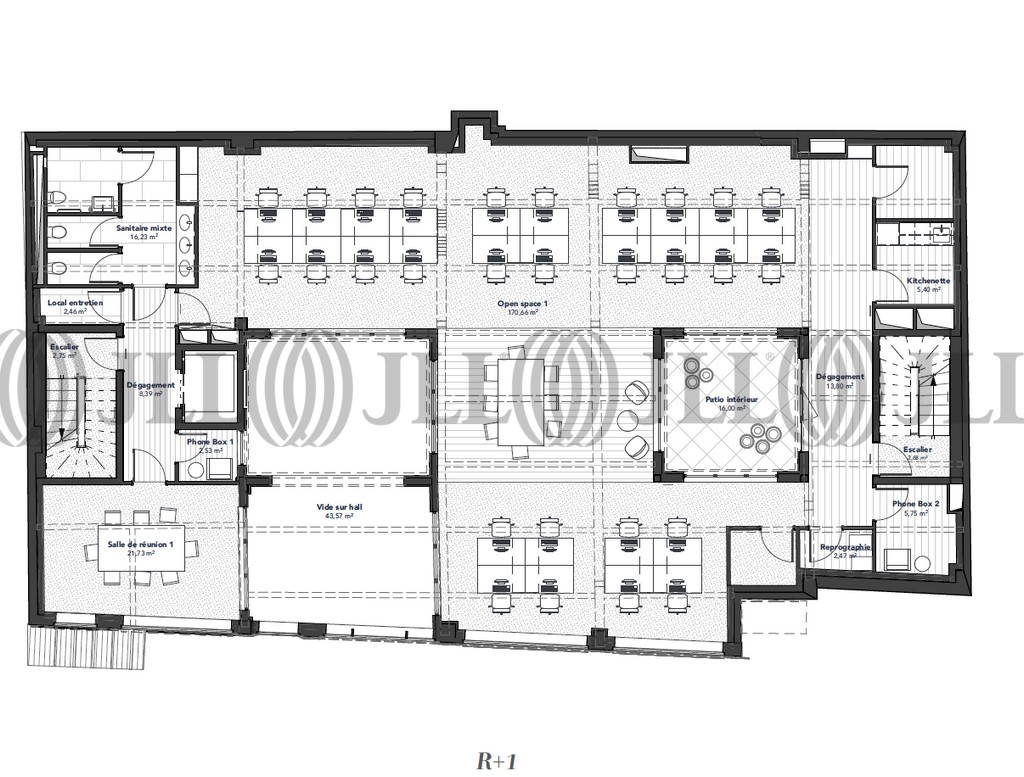
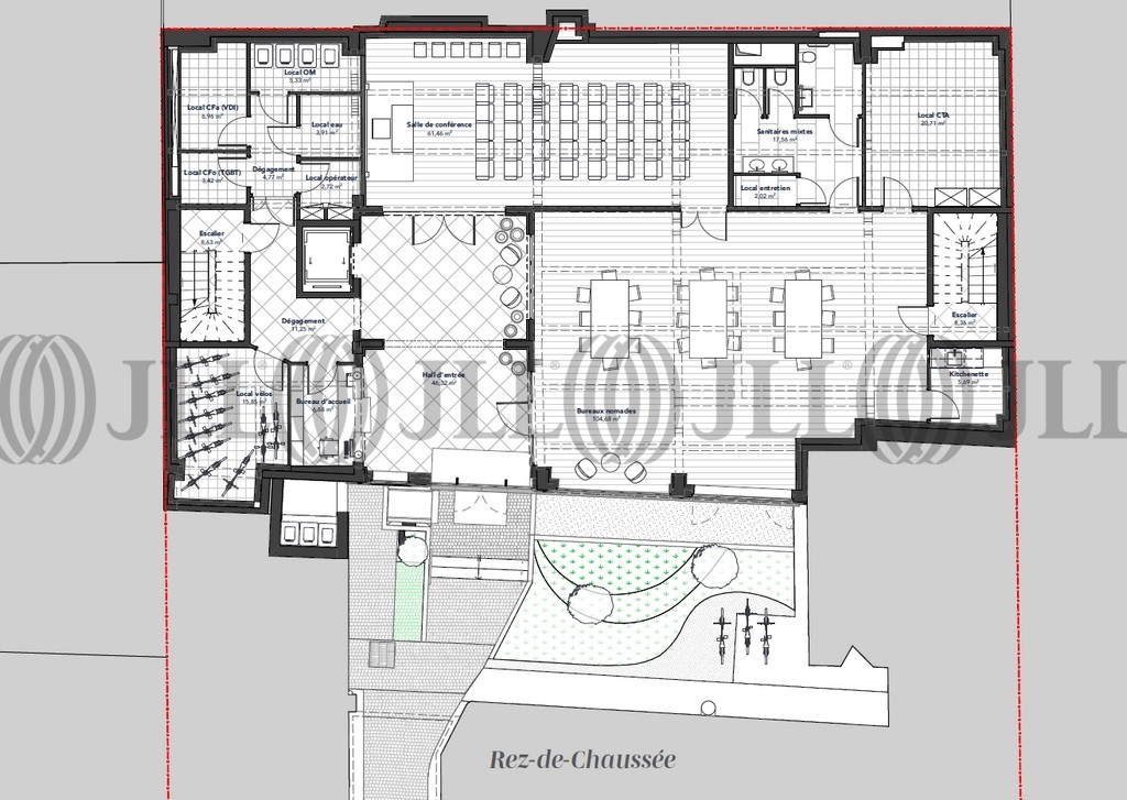
- Surface1 083 m² (env. 108 postes)
- DisponibilitéImmédiate
- Description
- Prestations & Services
- DPE
- Localisation et Transports
- Plans
- Brochure
- Consultant
- Nous contacter
Description
Immeuble de bureaux neuf situé dans le 15ème arrondissement, offrant des espaces de travail modernes et fonctionnels. Idéalement placé rue des Entrepreneurs, ce bien bénéficie d'un environnement calme en fond de cour, idéal pour y héberger le prochain siège de votre entreprise.
Les informations sur les risques auxquels ce bien est exposé sont disponibles sur le site Géorisques : www.georisques.gouv.fr
Surface disponible
DPE
Diagnostic en cours de réalisation
Localisation et Transports
. Métro : Commerce ou Félix Faure (ligne 8)
. Bus : Nombreuses lignes
. Bus : Nombreuses lignes
Consultant

Laura Jaunas
Détails de l'agent
Informations Marchés
Le marché locatif
96 RUE DES ENTREPRENEURS, 75015
Loyer moyen *
623 € / m²
49 offres à louerEn savoir plus* Moyenne calculée sur la base des transactions réalisées au cours des 12 derniers mois





