KALEIDO
2-8 RUE ALBERT EINSTEIN
PARIS, 75013
Nous consulter
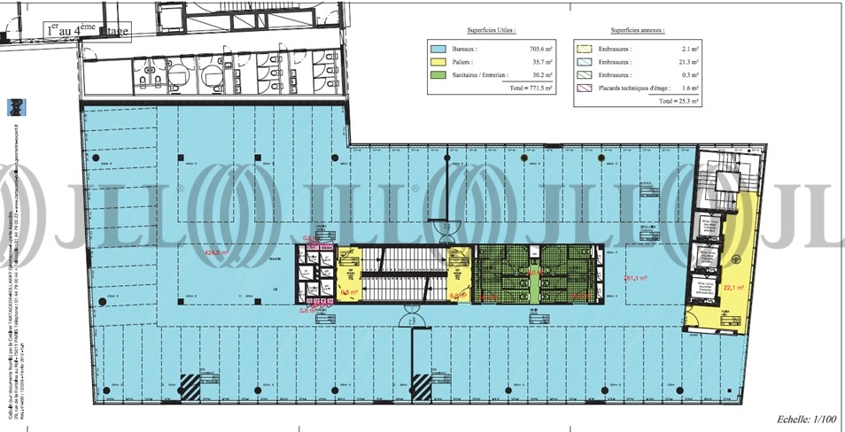
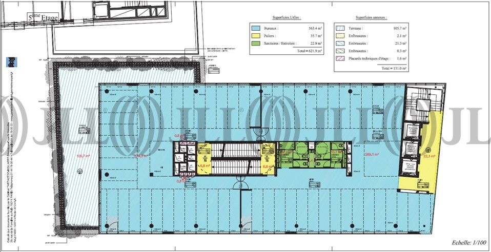
- Surface5 712 m² divisibles dès 840 m² (env. 571 postes)
- DisponibilitéImmédiate
- Description
- Prestations & Services
- DPE
- Localisation et Transports
- Plans
- Brochure
- Consultant
- Nous contacter
Description
Bureaux à louer, immeuble KALEIDO, 2-8 RUE ALBERT EINSTEIN à PARIS (75013).
JLL vous propose à la location un immeuble de 5 712 m² de bureaux divisible à partir de 840 m². Situé dans le 13ème arrondissement de Paris au coeur du quartier de la BNF et de l'avenue de France, cet immeuble bénéficie des certifications environnementales HQE et BREEAM Very Good. L'immeuble est desservi par la ligne 14 et le RER C staion Bibliothèque François Mitterrand et le Tramway T2 Avenue de France
KALEIDO se distingue par ses espaces extérieurs avec ses agréables terrasses. Les locaux sont climatisés et offrent des installations modernes, avec une grande souplesse d’aménagement et la présence d'un faux plancher technique.
Un atout supplémentaire pour votre visibilité : la possibilité d'enseigne sur l'immeuble.
Les informations sur les risques auxquels ce bien est exposé sont disponibles sur le site Géorisques : www.georisques.gouv.fr"
Labels : BREEAM BBC et HQE
Surface disponible
DPE
Diagnostic en cours de réalisation
Localisation et Transports
. RER : station "Bibliothèque François Mitterrand" (ligne C)
. Tramway : T3 au pied de l'immeuble
Consultant

Laura Jaunas
Détails de l'agent







