Bureaux
Réf. 100873Mise à jour
29 RUE DES BOULETS
PARIS, 75011
540 € / m²
- Surface489 m² (env. 48 postes)
- Disponibilité4e trim. 2026
- Description
- Prestations & Services
- DPE
- Localisation et Transports
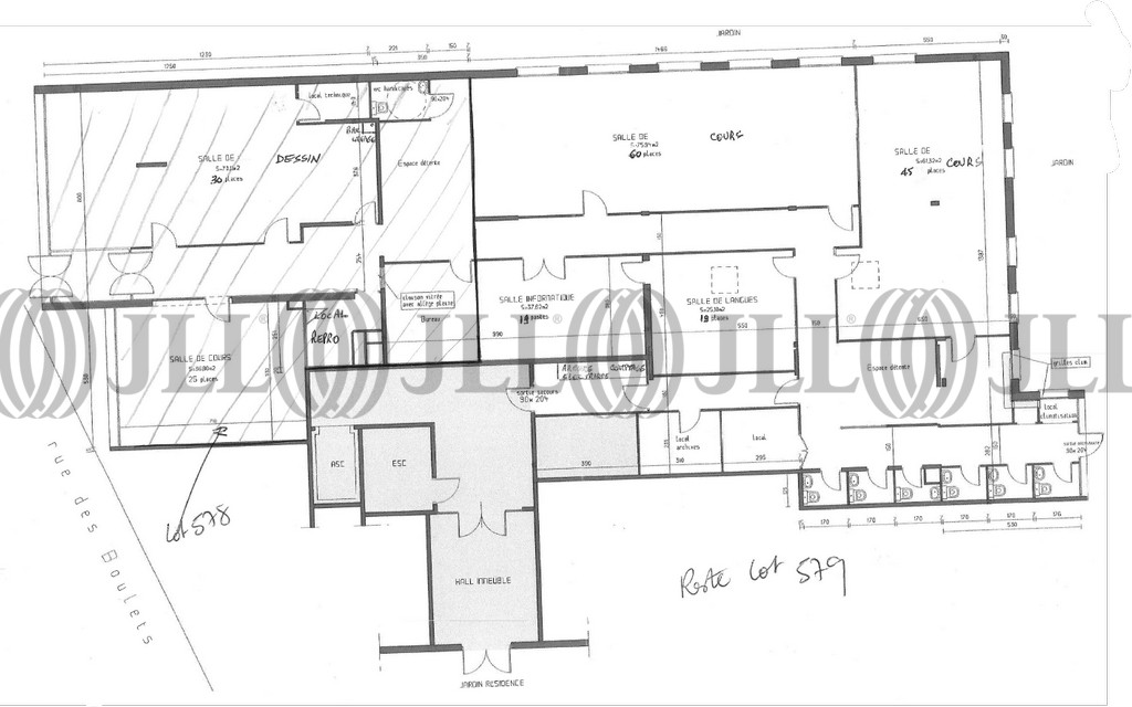
- Plan
- Brochure
- Consultant
- Nous contacter
Description
A toute proximité du Bd Voltaire et au pied du métro « rue des boulets », JLL vous propose une surface de bureau en rdc de 489 m².
Les bureaux en bon état d’usage avec accès PMR bénéficient d’une classification ERP 5 et d’une bonne souplesse d’utilisation de l’espace.
Le quartier dynamique propose des commerces et restaurants et est bien desservi par les transports en commun (métro, RER A et lignes de bus)
Les informations sur les risques auxquels ce bien est exposé sont disponibles sur le site Géorisques : www.georisques.gouv.fr
Surface disponible
DPE
Diagnostic en cours de réalisation
Localisation et Transports
. Métro : Rue des Boulets (lignes 9) à 2 min à pieds
. Métro : Faidherbe Chaligny (ligne 8) à 5 min à pieds
. Métro : Nation (ligne 1, 2, 6, 9) à 5 min à pieds
. RER A : Nation à 5 min à pieds
. Bus : Nombreuses lignes
. Métro : Faidherbe Chaligny (ligne 8) à 5 min à pieds
. Métro : Nation (ligne 1, 2, 6, 9) à 5 min à pieds
. RER A : Nation à 5 min à pieds
. Bus : Nombreuses lignes
Consultant

Lucas Tourlier
Détails de l'agent
Informations Marchés
Le marché locatif
29 RUE DES BOULETS, 75011
Loyer moyen *
540 € / m²
35 offres à louerEn savoir plus* Moyenne calculée sur la base des transactions réalisées au cours des 12 derniers mois







