Bureaux
Réf. 101133Nouveau
19-21 PASSAGE DUBAIL
PARIS, 75010
480 € / m²
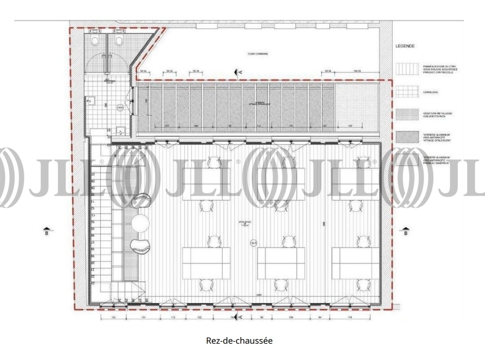
- Surface210 m² (env. 21 postes)
- Disponibilité3e trim. 2026
- Description
- Prestations & Services
- DPE
- Localisation et Transports
- Plans
- Brochure
- Consultant
- Nous contacter
Description
JLL vous propose une surface de bureaux à la location de 210 m² ERP catégorie 5, au sein d'un quartier vivant du 10ème arrondissement. Immeuble indépendant avec accès direct sur rue. RDC et 1er étage reliés par un escalier intérieur. Les locaux sont rénovés, lumineux, avec une belle hauteur sous plafond.
Les informations sur les risques auxquels ce bien est exposé sont disponibles sur le site Géorisques : www.georisques.gouv.fr
Bail : 18 mois minimum
Préavis de 6 mois
Surface disponible
DPE
Diagnostic en cours de réalisation
Localisation et Transports
. Métro : Gare de l'Est (lignes 4, 5, 7)
. Métro : Jacques Bonsergent (ligne 5)
. Métro : Château d'eau (ligne 4)
. RER B, D, E : Gare du Nord
. Métro : Jacques Bonsergent (ligne 5)
. Métro : Château d'eau (ligne 4)
. RER B, D, E : Gare du Nord
Consultant

Constance Bigot
Détails de l'agent
Informations Marchés
Le marché locatif
19-21 PASSAGE DUBAIL, 75010
Loyer moyen *
480 € / m²
58 offres à louerEn savoir plus* Moyenne calculée sur la base des transactions réalisées au cours des 12 derniers mois







