Bureaux
Réf. 97432Nouveau
Exclusivité JLL
4-6 BOULEVARD MONTMARTRE
PARIS, 75009
730 € / m²
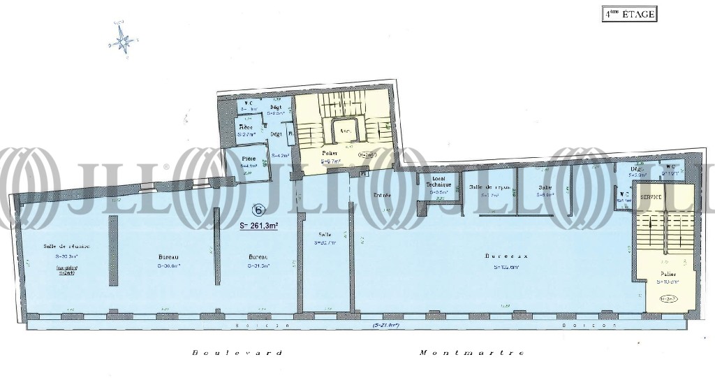
- Surface580 m² divisibles dès 290 m² (env. 58 postes)
- DisponibilitéImmédiate
- Description
- Prestations & Services
- DPE
- Localisation et Transports
- Plans
- Brochure
- Consultant
Description
Au pied du métro Grands Boulevards, au sein d’un bel immeuble pierre de taille, bureaux à louer. Au 2ème et 4ème étage, ces surfaces climatisées et divisibles seront ouvertes au maximum. Lumineux et plein de charme, ces locaux disposent de grandes fenêtres toute hauteur. Excellente desserte en transport en commun.
Les informations sur les risques auxquels ce bien est exposé sont disponibles sur le site Géorisques : www.georisques.gouv.fr
Surface disponible
DPE
Diagnostic en cours de réalisation
Localisation et Transports
. Métro : Grands Boulevards (lignes 8, 9)
. Bus : lignes 39, 48, 20, 85, 67, 74
. Vélib' : 42 rue Vivienne
. Bus : lignes 39, 48, 20, 85, 67, 74
. Vélib' : 42 rue Vivienne
Consultant

David Guesdon
Détails de l'agent
Informations Marchés
Le marché locatif
4-6 BOULEVARD MONTMARTRE, 75009
Loyer moyen *
730 € / m²
89 offres à louerEn savoir plus* Moyenne calculée sur la base des transactions réalisées au cours des 12 derniers mois