37 RUE CATHERINE DE LA ROCHEFOUCAULD
PARIS, 75009
620 € / m²
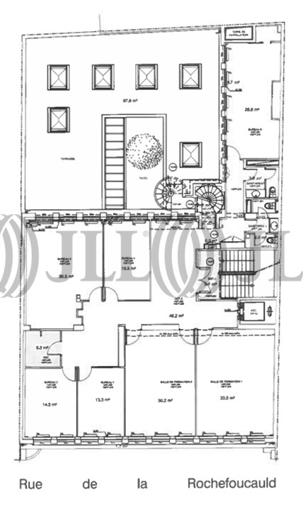
- Surface473 m² divisibles dès 235 m² (env. 47 postes)
- DisponibilitéNous consulter
- Description
- Prestations & Services
- DPE
- Localisation et Transports
- Plans
- Brochure
- Consultant
- Nous contacter
Description
Découvrez cette opportunité exceptionnelle de bureaux modernes de 473 m² situés au cœur du prestigieux 9ème arrondissement parisien.
Répartis sur deux plateaux lumineux et traversants aux 2ème et 3ème étages, ces espaces de travail offrent une modularité parfaite avec peu de contraintes porteuses et de nombreux services comme des parkings en sous-sol, un futur local vélo, un câblage informatique complet et la possibilité de reprise du mobilier.
Cet immeuble moderne, bénéficie d'un emplacement stratégique à proximité immédiate des métros Blanche, Saint-Georges et Le Peletier, ainsi que de nombreux commerces et restaurants.
Les informations sur les risques auxquels ce bien est exposé sont disponibles sur le site Géorisques : www.georisques.gouv.fr
Surface disponible
DPE
Diagnostic en cours de réalisation
Localisation et Transports
. Métro : Saint-Georges (ligne 12) à 450 m environ
. Métro : Le Peletier (ligne 7) à 600 m environ
. SNCF : Gare Saint-Lazare
. Bus : Ligne 74 : Arrêt Blanche ou Saint-Georges
. Bus : Ligne 67 : Arrêt Saint-Georges ou Fontaine
. Bus : Ligne 85 : Arrêt Fontaine
. Vélib' : 56 rue Saint Georges
Consultant

Mayeul De saqui
Détails de l'agent







