30 RUE TRONCHET
PARIS, 75009
Nous consulter
- Surface830 m² divisibles dès 157 m² (env. 83 postes)
- Disponibilité2e trim. 2026
- Description
- Prestations & Services
- DPE
- Localisation et Transports
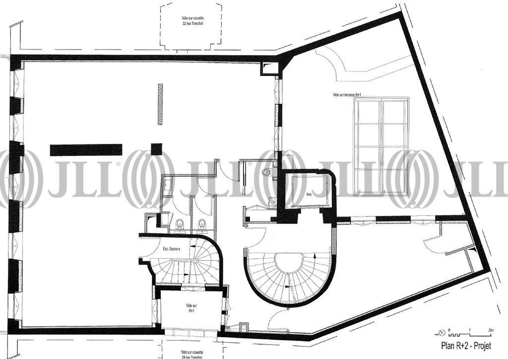
- Plans
- Brochure
- Consultant
- Nous contacter
Description
Nous vous proposons à la location Immeuble Haussmannien indépendant de bureaux, entièrement restructuré. Idéalement situé entre la
Gare Saint-Lazare, les Galeries Lafayette et la Madeleine, cette opportunité exceptionnelle offre une rénovation complète et de haute qualité dans le cadre d'un projet global de rénovation. Ne manquez pas cette occasion unique de bénéficier d'espaces de bureaux attractifs dans un emplacement stratégique au cœur de Paris.
L’immeuble dispose de 2 commerces en pied d’immeuble. Terrasse privative au R+1 et balcons filants au R+2 et R+5
Les informations sur les risques auxquels ce bien est exposé sont disponibles sur le site Géorisques : www.georisques.gouv.fr
Surface disponible
DPE
Diagnostic en cours de réalisation
Localisation et Transports
. Métro : Madeleine (lignes 8, 12, 14)
. RER A : Auber . Bus : Lignes 20, 21, 27, 29, 32, 95, 66
Consultant

Henri Weydert
Détails de l'agent




