Bureaux
Réf. 8531998 VICTOIRE
98 RUE DE LA VICTOIRE
PARIS, 75009
1 050 € / m²
- Surface2 542 m² (env. 254 postes)
- DisponibilitéImmédiate
- Description
- Prestations & Services
- DPE
- Localisation et Transports
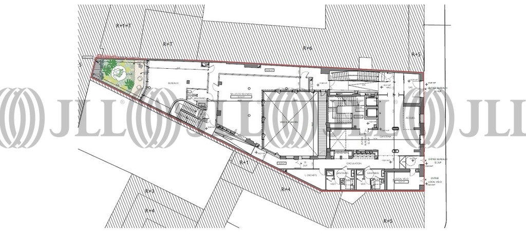
- Plans
- Brochure
- Consultant
- Nous contacter
Description
Le 98 Victoire allie l’élégance de son architecture à la qualité de ses prestations : Hall d’accueil épuré et ouvert sur un patio végétalisé, espaces de convivialité, plateaux de bureaux généreux et modulables, jardins et toitures terrasses comme autant d’espaces de travail informels pour stimuler la créativité de chacun.
Les informations sur les risques auxquels ce bien est exposé sont disponibles sur le site Géorisques : www.georisques.gouv.fr
Surface disponible
DPE
Diagnostic en cours de réalisation
Localisation et Transports
. Métro : Notre-Dame-de-Lorette (ligne 12)
. Métro : Le Peletier (ligne 7)
. Bus : Lignes 26, 43
. Métro : Le Peletier (ligne 7)
. Bus : Lignes 26, 43
Consultant

Philippe Zeigeisen
Détails de l'agent
Informations Marchés
Le marché locatif
98 RUE DE LA VICTOIRE, 75009
Loyer moyen *
1 050 € / m²
96 offres à louerEn savoir plus* Moyenne calculée sur la base des transactions réalisées au cours des 12 derniers mois







