Bureaux
Réf. 101108Nouveau
13 RUE DE LABORDE
PARIS, 75008
Nous consulter
- Surface80 m² (env. 8 postes)
- Disponibilité3e trim. 2026
- Description
- Prestations & Services
- DPE
- Localisation et Transports
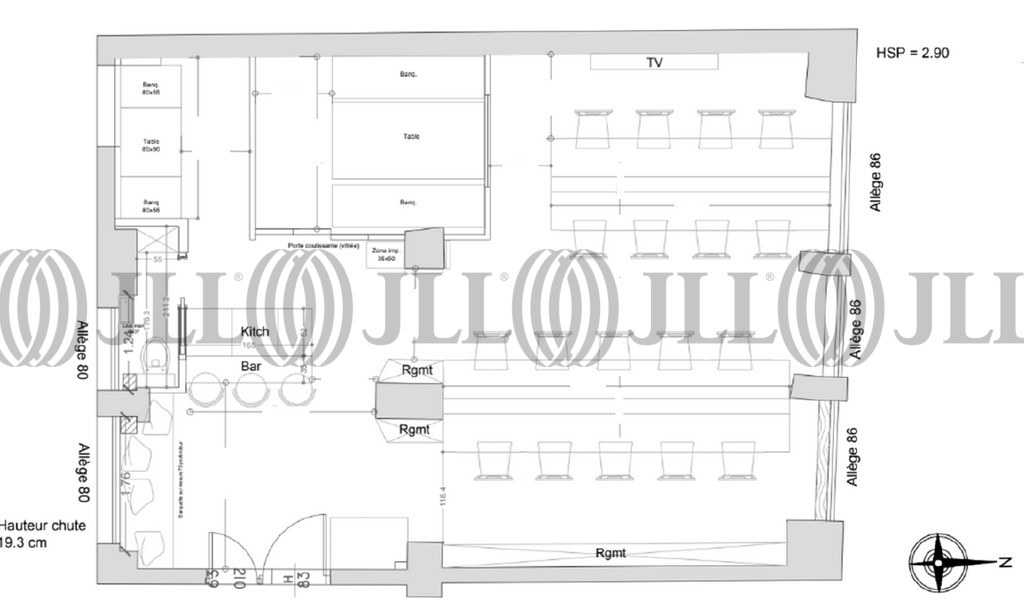
- Plan
- Brochure
- Consultant
- Nous contacter
Description
JLL vous propose une surface de bureaux en plug and play à louer au coeur du 8ème arrondissement de Paris, en rez-de-chaussée. Cette surface est proposée en prestation de service, incluant : mobilier, cuisine équipée et salles de réunions.
Idéalement situés, a deux pas de la gare Saint-Lazare, les locaux bénéficient d'une excellente accessibilité.
Les informations sur les risques auxquels ce bien est exposé sont disponibles sur le site Géorisques : www.georisques.gouv.fr
Loyer tout compris : 5 500€ / mois
Capacitaire : 16 postes
Engagement minimum : 12 mois
Surface disponible
DPE
Diagnostic en cours de réalisation
Localisation et Transports
. Métro : Miromesnil (lignes 9, 13)
. Métro : Saint Lazare (lignes 3, 12, 13, 14)
. RER E : Haussmann Saint-Lazare
. Métro : Saint Lazare (lignes 3, 12, 13, 14)
. RER E : Haussmann Saint-Lazare
Consultant

Cleos Paris
Détails de l'agent
Informations Marchés
Le marché locatif
13 RUE DE LABORDE, 75008
204 offres à louerEn savoir plus
* Moyenne calculée sur la base des transactions réalisées au cours des 12 derniers mois







