Bureaux
Réf. 100113Mise à jour
90 RUE DE MIROMESNIL
PARIS, 75008
790 € / m²
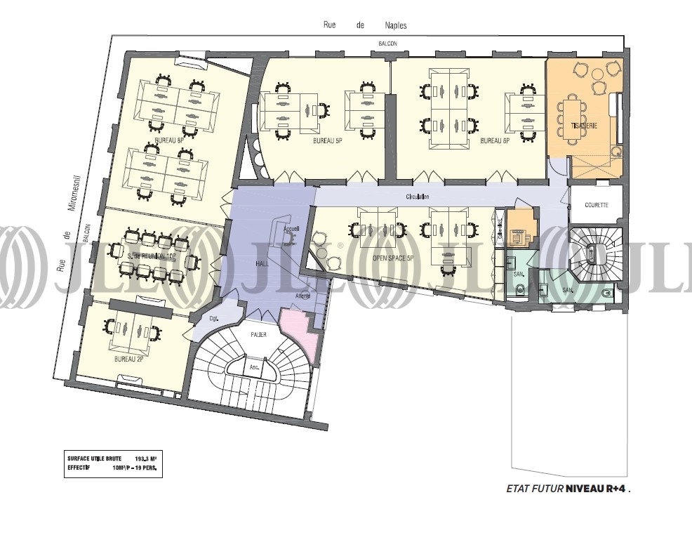
- Surface465 m² divisibles dès 194 m² (env. 46 postes)
- Disponibilité3e trim. 2026
- Description
- Prestations & Services
- DPE
- Localisation et Transports
- Plans
- Brochure
- Consultant
- Nous contacter
Description
Située entre le Parc Monceau et la Gare Saint Lazare au plein cœur du QCA, nous vous proposons deux surfaces de bon standing au 4ème et 5ème étage. Excellente desserte en transport en commun. La qualité des prestations proposées alliée au dynamisme du quartier viendra assurer le confort de leurs futurs occupants.
Les informations sur les risques auxquels ce bien est exposé sont disponibles sur le site Géorisques : www.georisques.gouv.fr
Surface disponible
DPE
Diagnostic en cours de réalisation
Localisation et Transports
. Métro : Villiers (ligne 2, 3) à 250 m
. RER E : Haussmann - Saint-Lazare à 8 min en métro
. SNCF : Gare Saint-Lazare à 8 min en métro
. Bus : Lignes 20, 30, 93
. RER E : Haussmann - Saint-Lazare à 8 min en métro
. SNCF : Gare Saint-Lazare à 8 min en métro
. Bus : Lignes 20, 30, 93
Consultant

Matthieu Doucet
Détails de l'agent
Informations Marchés
Le marché locatif
90 RUE DE MIROMESNIL, 75008
Loyer moyen *
790 € / m²
203 offres à louerEn savoir plus* Moyenne calculée sur la base des transactions réalisées au cours des 12 derniers mois





