
151 BOULEVARD HAUSSMANN
PARIS, 75008
700 € / m²
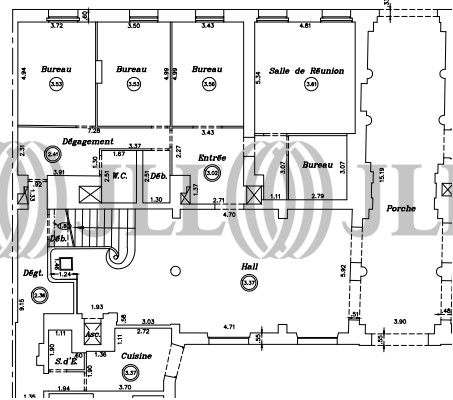
- Surface762 m² divisibles dès 171 m² (env. 76 postes)
- DisponibilitéImmédiate
- Description
- Prestations & Services
- DPE
- Localisation et Transports
- Plans
- Brochure
- Consultant
- Nous contacter
Description
Trois plateaux d'exception de 171, 231 et 360 m² dans cet immeuble emblématique du boulevard Haussmann, à proximité de Saint-Philippe-du-Roule. Ces espaces conservent tout le cachet de l'architecture parisienne avec parquets d'origine, moulures et hauts plafonds, tout en bénéficiant d'équipements modernes (climatisation, câblage informatique). Configuration modulable selon les besoins : bureaux fermés, salles de réunion équipées, espaces collaboratifs et zones d'accueil.
Capacité d'accueil de 12 à 30 postes selon la surface. Situation privilégiée dans le triangle d'or du 8ème arrondissement, proche des Champs-Élysées et du Faubourg Saint-Honoré, avec un accès métro direct. Disponibles en bail dérogatoire ou formule bureaux opérés tout inclus avec services hôteliers, maintenance et accès sécurisé 24h/24.
Tarification attractive pour cette adresse de prestige, avec possibilité d'aménagement personnalisé selon la durée d'engagement.
Bail 36 mois maximum
Surface disponible
DPE
Diagnostic en cours de réalisation
Localisation et Transports
. Métro : Miromesnil (lignes 9, 13)
. RER A : Auber
. RER E : Haussmann - Saint-Lazare
. SNCF : Gare Saint-Lazare
. Bus : Lignes 22, 43, 52, 83, 93
Consultant

Arthur Dubeau-baeyens
Détails de l'agent