Bureaux
Réf. 9912612 RUE DE FLORENCE
PARIS, 75008
900 € / m²
- Surface794 m² (env. 79 postes)
- DisponibilitéImmédiate
- Description
- Prestations & Services
- DPE
- Localisation et Transports
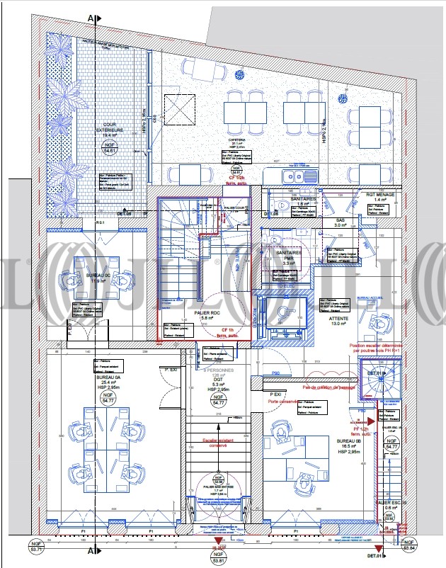
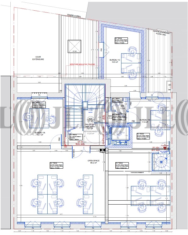
- Plans
- Brochure
- Consultant
- Nous contacter
Description
Dans un bel immeuble haussmannien indépendant situé à proximité immédiate de la gare Saint-Lazare, JLL vous propose en exclusivité à la location un hôtel particulier de caractère de 795 m² livré entièrement restructuré pour février 2026. Il bénéficiera de plateaux flexibles et rationnels avec peu de contraintes porteuses mélangeant des bureaux patrimoniaux et modernes. Une cour intérieure sera également créée et accessible. Le bailleur offre également la possibilité de faire un Plug&play.
Les informations sur les risques auxquels ce bien est exposé sont disponibles sur le site Géorisques : www.georisques.gouv.fr
Surface disponible
DPE
Diagnostic en cours de réalisation
Localisation et Transports
. Métro : Place de Clichy (lignes 2, 13) à 4 min
. Métro : Europe (ligne 3) à 6 min
. Métro : Saint-Lazare (lignes 3, 12, 13, 14) à 8 min
. SNCF: Gare Saint-Lazare à 8 min
. RER E : Haussmann Saint-Lazare à 14 min
. Bus : Nombreuses lignes
. Métro : Europe (ligne 3) à 6 min
. Métro : Saint-Lazare (lignes 3, 12, 13, 14) à 8 min
. SNCF: Gare Saint-Lazare à 8 min
. RER E : Haussmann Saint-Lazare à 14 min
. Bus : Nombreuses lignes
Consultant

Guillaume Rigaut
Détails de l'agent
Informations Marchés
Le marché locatif
12 RUE DE FLORENCE, 75008
Loyer moyen *
900 € / m²
204 offres à louerEn savoir plus* Moyenne calculée sur la base des transactions réalisées au cours des 12 derniers mois






