Bureaux
Réf. 9702689 RUE DE MONCEAU
PARIS, 75008
673,07 € / m²
- Surface260 m² (env. 26 postes)
- DisponibilitéImmédiate
- Description
- Prestations & Services
- DPE
- Localisation et Transports
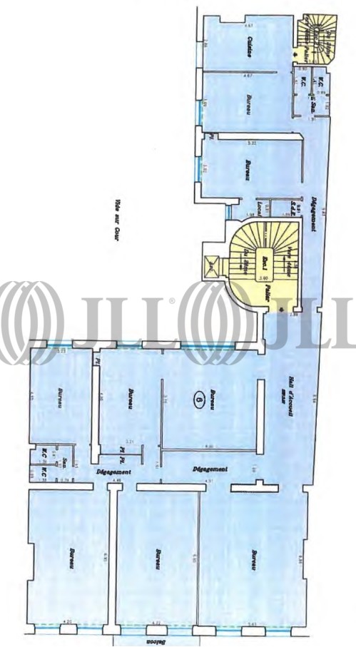
- Plan
- Brochure
- Consultant
- Nous contacter
Description
Dans un bel immeuble haussmannien en pierre de taille, nous vous proposons une surface de bureaux très lumineuse à la location donnant sur une cour totalement privative. La surface possède un coin cuisine, une salle de réunion, un bureau fermé et un open-space.
Les informations sur les risques auxquels ce bien est exposé sont disponibles sur le site Géorisques : www.georisques.gouv.fr
Surface disponible
DPE
Diagnostic en cours de réalisation
Localisation et Transports
. Métro : Villiers (lignes 2 et 3) à 3 mn
. SNCF : St Lazare à 10 mn
. Vélib' : Villiers à 3 mn
. Bus : lignes 30, 20, 93, N16, N52 . Gare SNCF "Saint-Lazare"
. SNCF : St Lazare à 10 mn
. Vélib' : Villiers à 3 mn
. Bus : lignes 30, 20, 93, N16, N52 . Gare SNCF "Saint-Lazare"
Consultant

Arthur Dubeau-baeyens
Détails de l'agent
Informations Marchés
Le marché locatif
89 RUE DE MONCEAU, 75008
Loyer moyen *
673,07 € / m²
204 offres à louerEn savoir plus* Moyenne calculée sur la base des transactions réalisées au cours des 12 derniers mois





