Bureaux
Réf. 96994PARIS, 75008
666,66 € / m²
- Surface180 m² (env. 18 postes)
- DisponibilitéNous consulter
- Description
- Prestations & Services
- DPE
- Localisation et Transports
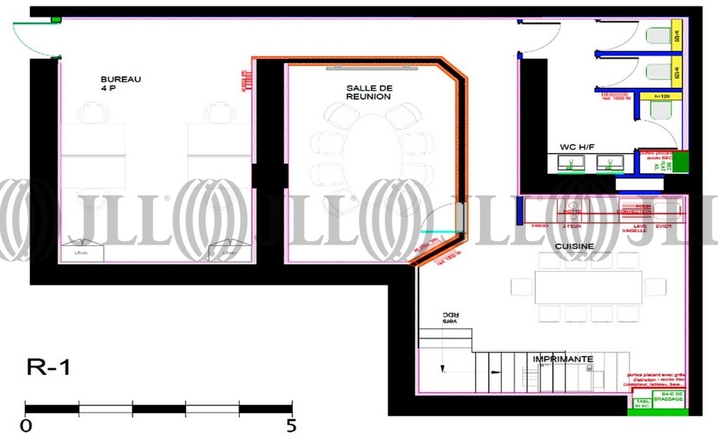
- Plans
- Brochure
- Consultant
- Nous contacter
Description
Au cœur du Triangle d’Or, dans un immeuble de grand standing, JLL vous propose une surface de bureaux à la location de 180m² donnant sur une cour calme. Répartie sur deux niveaux (RDC et sous-sol), ces locaux en parfait état sont climatisés et offrent une belle hauteur sous plafond. Peu de contraintes porteuses et terrasse privative.
Accès direct sur cour.
Les informations sur les risques auxquels ce bien est exposé sont disponibles sur le site Géorisques : www.georisques.gouv.fr
Bail professionnel ou sous location
Surface disponible
DPE
Diagnostic en cours de réalisation
Localisation et Transports
. Métro : Alma - Marceau (ligne 9)
. Métro : George V (ligne 1)
. Métro : Franklin.D Roosevelt (lignes 1, 9)
. RER C : Pont de l'Alma
. Bus : Lignes 32, 92, 80, 42
. Métro : George V (ligne 1)
. Métro : Franklin.D Roosevelt (lignes 1, 9)
. RER C : Pont de l'Alma
. Bus : Lignes 32, 92, 80, 42
Consultant

Pierre Pigott
Détails de l'agent
Informations Marchés
Le marché locatif
, 75008
Loyer moyen *
666,66 € / m²
204 offres à louerEn savoir plus* Moyenne calculée sur la base des transactions réalisées au cours des 12 derniers mois







