Bureaux
Réf. 9662487-89 RUE LA BOETIE
PARIS, 75008
590 € / m²
- Surface748 m² divisibles dès 218 m² (env. 74 postes)
- DisponibilitéImmédiate
- Description
- Prestations & Services
- DPE
- Localisation et Transports
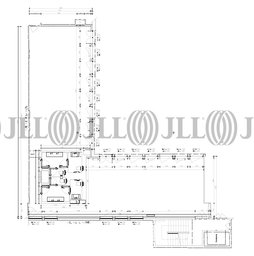
- Plans
- Brochure
- Consultant
- Nous contacter
Description
Dans un immeuble récent de bon standing, située à proximité des champs Elysées. Nous vous proposons une offre de bureaux rationnelle et modulable à la location, climatisée, d’une surface d’environ 360 m².
Les informations sur les risques auxquels ce bien est exposé sont disponibles sur le site Géorisques : www.georisques.gouv.fr
Surface disponible
DPE
Diagnostic en cours de réalisation
Localisation et Transports
. Métro : Franklin D.Roosevelt (lignes 1, 9)
. Métro : Saint-Philippe-du-Roule (ligne 9)
. RER A : Charles de Gaulle Etoile
. Bus : lignes 28, 80, 83, 93
. Métro : Saint-Philippe-du-Roule (ligne 9)
. RER A : Charles de Gaulle Etoile
. Bus : lignes 28, 80, 83, 93
Consultant

Matthieu Doucet
Détails de l'agent
Informations Marchés
Le marché locatif
87-89 RUE LA BOETIE, 75008
Loyer moyen *
590 € / m²
199 offres à louerEn savoir plus* Moyenne calculée sur la base des transactions réalisées au cours des 12 derniers mois







