6 RUE PAUL BAUDRY
PARIS, 75008
670 € / m²
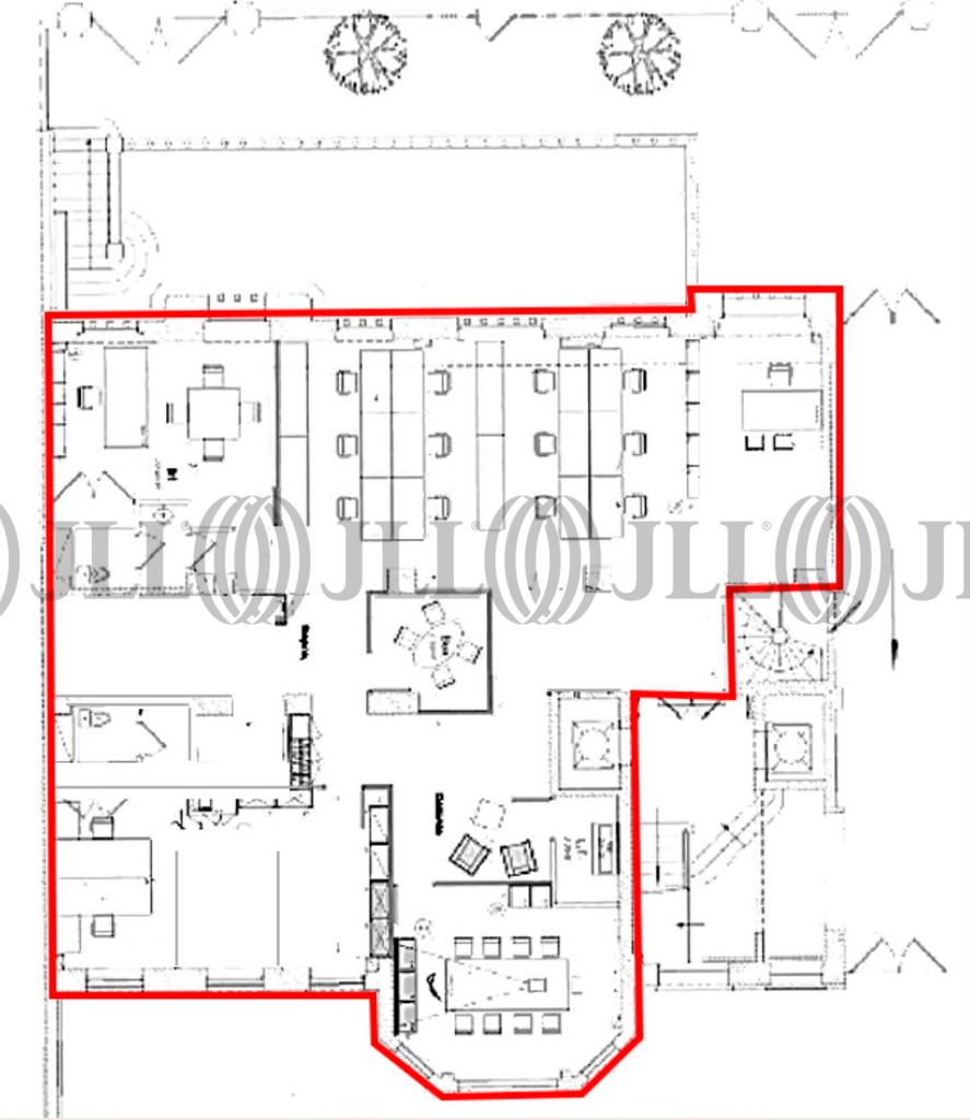
- Surface855 m² divisibles dès 230 m² (env. 85 postes)
- DisponibilitéImmédiate
- Description
- Prestations & Services
- DPE
- Localisation et Transports
- Plans
- Brochure
- Consultant
- Nous contacter
Description
JLL vous propose à la location trois plateaux de bureaux de très bon standing répartis au rez-de-chaussée, 3ème et 4ème étage d'un ancien hôtel particulier situé dans le prestigieux 8ème arrondissement. Ces surfaces lumineuses sans contrainte porteuse offrent un cadre unique alliant charme historique et fonctionnalité moderne dans l'un des quartiers les plus recherchés de la capitale. L'immeuble dispose de places de parking privatives qui facilitent l'accès et optimisent les déplacements professionnels de vos collaborateurs.
L'emplacement bénéficie d'une accessibilité exceptionnelle grâce à sa proximité immédiate avec les transports en commun : métro Franklin D. Roosevelt (lignes 1, 9), Champs-Élysées - Clemenceau (lignes 1, 13), Saint-Philippe du Roule (ligne 9). Ne manquez pas cette opportunité exceptionnelle de louer ces bureaux de prestige dans un cadre historique d'exception.
Les informations sur les risques auxquels ce bien est exposé sont disponibles sur le site Géorisques : www.georisques.gouv.fr
Surface disponible
DPE
Diagnostic en cours de réalisation
Localisation et Transports
. Métro : George V (ligne 1)
. Métro : Charles de Gaulle - Etoile (lignes 1, 2, 6)
. RER A : Charles de Gaulle - Etoile
. Vélib' : 42 avenue George V
Consultant

Thibault Philippe
Détails de l'agent







