Bureaux
Réf. 879243 RUE TRONCHET
PARIS, 75008
Nous consulter
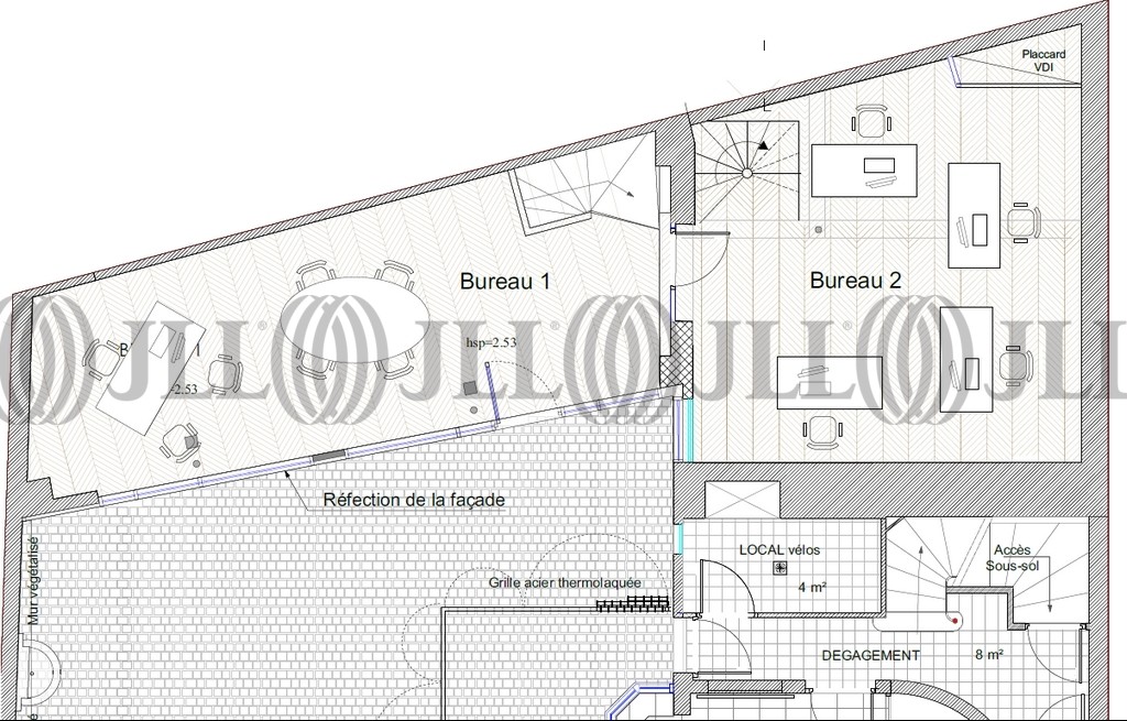
- Surface202 m² (env. 20 postes)
- DisponibilitéImmédiate
- Description
- Prestations & Services
- DPE
- Localisation et Transports
- Plans
- Brochure
- Consultant
- Nous contacter
Description
Nous vous proposons à la location une surface de bureaux dans un immeuble haussmannien de grande qualité. Idéalement situé entre la gare Saint-Lazare, les Galeries Lafayette et la Madeleine, cette opportunité exceptionnelle offre une rénovation complète et de haute qualité dans le cadre d'un projet global de rénovation. Ne manquez pas cette occasion unique de bénéficier d'espaces de bureaux attractifs dans un emplacement stratégique au cœur de Paris.
Les informations sur les risques auxquels ce bien est exposé sont disponibles sur le site Géorisques : www.georisques.gouv.fr
Surface disponible
DPE
Diagnostic en cours de réalisation
Localisation et Transports
. Métro : Madeleine (lignes 8, 12, 14)
. RER A : Auber
. SNCF : Gare de Saint-Lazare
. Bus : Lignes 42, 52, 94
. Vélib' : 4 Boulevard Malesherbes
. RER A : Auber
. SNCF : Gare de Saint-Lazare
. Bus : Lignes 42, 52, 94
. Vélib' : 4 Boulevard Malesherbes
Consultant

Thibault Philippe
Détails de l'agent
Informations Marchés
Le marché locatif
3 RUE TRONCHET, 75008
204 offres à louerEn savoir plus
* Moyenne calculée sur la base des transactions réalisées au cours des 12 derniers mois







