Bureaux
Réf. 8386647-49 RUE DE MIROMESNIL
PARIS, 75008
980 € / m²
- Surface3 381 m² (env. 338 postes)
- Disponibilité3e trim. 2026
- Description
- Prestations & Services
- DPE
- Localisation et Transports
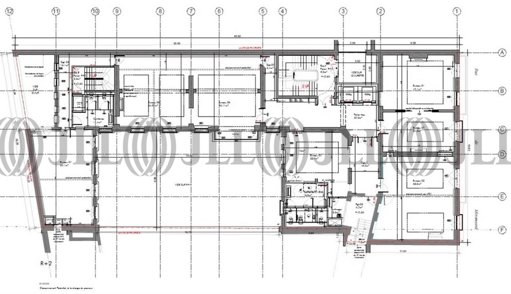
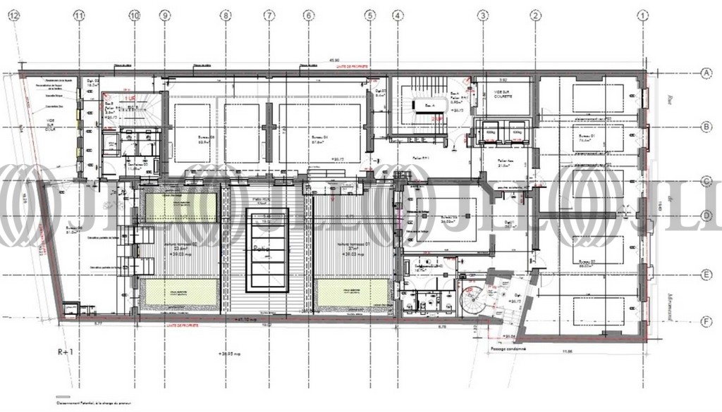
- Plans
- Brochure
- Consultant
- Nous contacter
Description
Au coeur du Quartier Central des Affaires, JLL vous propose un immeuble de bureaux indépendant à louer dans le 8ème arrondissement. Cet immeuble, entièrement restructuré et mis en conformité avec le Décret Tertiaire, sera le siège idéal d'une société recherchant à allier le charme de l'ancien et le confort du moderne, dans un écrin répondant aux derniers standards architecturaux.
Les informations sur les risques auxquels ce bien est exposé sont disponibles sur le site Géorisques : www.georisques.gouv.fr
Surface disponible
DPE
Diagnostic en cours de réalisation
Localisation et Transports
. Métro : Miromesnil (lignes 9, 13)
. RER E: Haussmann - Saint-Lazare
. SNCF : Gare Saint-Lazare
. Bus : Nombreuses lignes
. RER E: Haussmann - Saint-Lazare
. SNCF : Gare Saint-Lazare
. Bus : Nombreuses lignes
Consultant

Jérémy Ouazan
Détails de l'agent
Informations Marchés
Le marché locatif
47-49 RUE DE MIROMESNIL, 75008
Loyer moyen *
980 € / m²
204 offres à louerEn savoir plus* Moyenne calculée sur la base des transactions réalisées au cours des 12 derniers mois







