77 RUE LA BOETIE
PARIS, 75008
Nous consulter
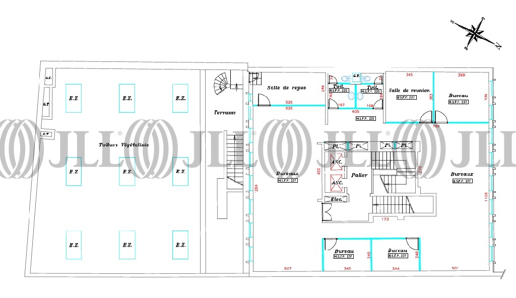
- Surface1 180 m² (env. 118 postes)
- Disponibilité2e trim. 2027
- Description
- Prestations & Services
- DPE
- Localisation et Transports
- Plans
- Brochure
- Consultant
- Nous contacter
Description
Location de bureaux Paris 8ème arrondissement.
L'immeuble bénéficie d’une localisation au coeur du Quartier Central des Affaires, entre les rues d’Artois, du Colisée et l’avenue Franklin Roosevelt, dans un environnement essentiellement tertiaire composé de nombreux commerces et de nombreuses entreprises de renom. Excellente desserte par les transports en commun avec la proximité des stations de Métro « Saint-Philippe-du-Roule » (Ligne 9) à 100 mètres et « Franklin Roosevelt » à 450 mètres ainsi que de nombreuses lignes de bus.
Les informations sur les risques auxquels ce bien est exposé sont disponibles sur le site Géorisques : www.georisques.gouv.fr
- Les charges comprennent les honoraires de gestion tech. et administrative
- Assurances multirique : 1.39€ HT/m²/an
Surface disponible
DPE
Diagnostic en cours de réalisation
Localisation et Transports
. Métro : Franklin Roosevelt (lignes 1, 9) à 500 m
. Bus : lignes 82, 93, 83, 28, 52
. Velib' : 116 rue La Boétie à 180 m
Consultant

Nicolas Benadiner
Détails de l'agent







