Bureaux
Réf. 96176Mise à jour
11 RUE ERNEST PSICHARI
PARIS, 75007
400 € / m²
- Surface144 m² (env. 14 postes)
- DisponibilitéImmédiate
- Description
- Prestations & Services
- DPE
- Localisation et Transports
- Plans
- Brochure
- Consultant
Description
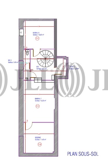
Au pied d’un bel immeuble des années 30, situés entre l’Ecole Militaire et les Invalides, ces locaux à usage de bureaux présentent une surface de 106 m² accessible depuis la rue, avec une large façade vitrée, ainsi qu’une surface en sous-sol de 48 m², pondérée à 38 m², accessible par escalier.
Les informations sur les risques auxquels ce bien est exposé sont disponibles sur le site Géorisques : www.georisques.gouv.fr
Surface disponible
DPE
Diagnostic en cours de réalisation
Localisation et Transports
. Métro : Tour Maubourg ou Ecole Militaire (ligne 8)
. Rer : Invalides (ligne C)
. Bus : ligne 28
. Rer : Invalides (ligne C)
. Bus : ligne 28
Consultant

Renald Ahehehinnou
Détails de l'agent
Informations Marchés
Le marché locatif
11 RUE ERNEST PSICHARI, 75007
Loyer moyen *
400 € / m²
13 offres à louerEn savoir plus* Moyenne calculée sur la base des transactions réalisées au cours des 12 derniers mois