Bureaux
Réf. 93531Mise à jour
6 AVENUE DE VILLARS
PARIS, 75007
750 € / m²
- Surface466 m² (env. 46 postes)
- DisponibilitéImmédiate
- Description
- Prestations & Services
- DPE
- Localisation et Transports
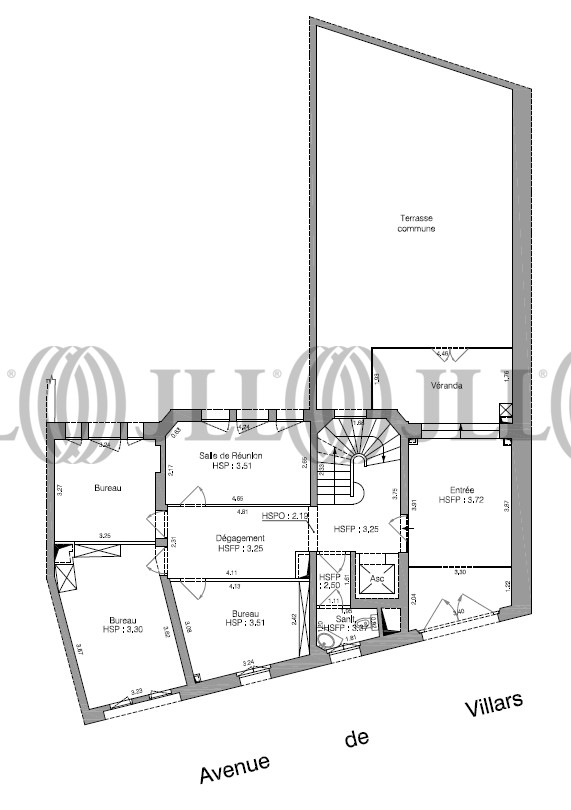
- Plans
- Brochure
- Consultant
- Nous contacter
Description
Entre les Invalides et Montparnasse, nous vous proposons à la location un hôtel particulier en R+2, élevé sur un entresol donnant sur un jardin privatif.
Situé à proximité du métro Ligne 13, station "Saint François Xavier", ce bâtiment indépendant de bon standing propose des plateaux cloisonnés et câblés donnant sur un jardin accessible. Les locaux sont calmes et les bureaux en 1er jour.
Les informations sur les risques auxquels ce bien est exposé sont disponibles sur le site Géorisques : www.georisques.gouv.fr
. Les deux emplacements de parking sont situés au sous-sol du 4 avenue de Villars.
Surface disponible
DPE
Diagnostic en cours de réalisation
Localisation et Transports
. Métro : ligne 13, station "Saint François Xavier"
. RER C : station "Invalides"
. Vélib' : 35 boulevard des Invalides
. Autolib' : 32 boulevard des Invalides
. RER C : station "Invalides"
. Vélib' : 35 boulevard des Invalides
. Autolib' : 32 boulevard des Invalides
Consultant

Rayan Houari
Détails de l'agent
Informations Marchés
Le marché locatif
6 AVENUE DE VILLARS, 75007
Loyer moyen *
750 € / m²
13 offres à louerEn savoir plus* Moyenne calculée sur la base des transactions réalisées au cours des 12 derniers mois







