Bureaux
Réf. 94892131 BOULEVARD SAINT MICHEL
PARIS, 75005
Nous consulter
- Surface909 m² (env. 90 postes)
- DisponibilitéImmédiate
- Description
- Prestations & Services
- DPE
- Localisation et Transports
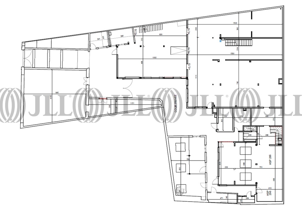
- Plan
- Brochure
- Consultant
- Nous contacter
Description
JLL vous propose un bâtiment sur cour de 811 m², situé à proximité immédiate du jardin du Luxembourg. Une rénovation lourde a été réalisée, offrant des espaces livrés brut de béton. Le bailleur accompagnera le preneur dans l'aménagement final. Ces locaux CINASPIC, au calme, bénéficient d'une cour privative et sont ERPables. Il est possible d'adjoindre 90 m² de locaux commerciaux avec vitrine et accès sur rue.
Les informations sur les risques auxquels ce bien est exposé sont disponibles sur le site Géorisques : www.georisques.gouv.fr
Surface disponible
DPE
Diagnostic en cours de réalisation
Localisation et Transports
. Métro Vavin (Ligne 4) 10 min à pied
. Métro Censier Dubenton (Ligne 7) 15 min à pied
. Métro Censier Dubenton (Ligne 7) 15 min à pied
Consultant

Renald Ahehehinnou
Détails de l'agent
Informations Marchés
Le marché locatif
131 BOULEVARD SAINT MICHEL, 75005
3 offres à louerEn savoir plus
* Moyenne calculée sur la base des transactions réalisées au cours des 12 derniers mois







