104 RUE D'ABOUKIR
PARIS, 75002
800 € / m²
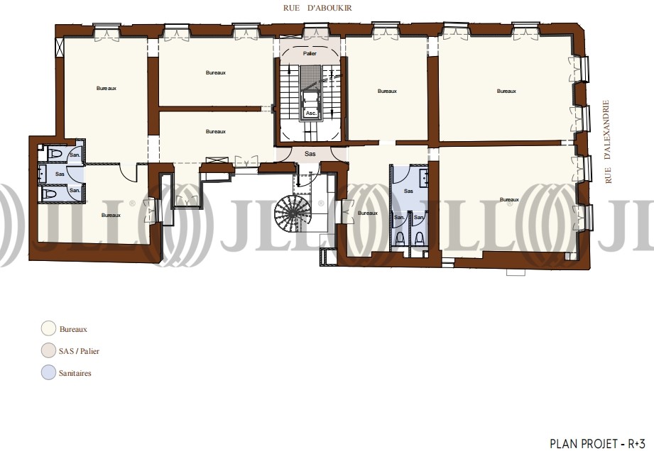
- Surface416 m² divisibles dès 151 m² (env. 41 postes)
- Disponibilité3e trim. 2026
- Description
- Prestations & Services
- DPE
- Localisation et Transports
- Plans
- Brochure
- Consultant
- Nous contacter
Description
Dans un immeuble typique faubourien du XVIIIème siècle, entièrement restructuré en 2026, JLL vous propose 416 m² de bureaux rénovés répartis sur deux étages. Ces espaces lumineux offrent une grande flexibilité d’aménagement, de beaux volumes et des espaces communs conviviaux comprenant open space, salles de réunion et cuisine équipée, le tout dans un style élégant avec parquet.
Vous bénéficierez également d’une excellente desserte en transports, grâce à de nombreuses lignes de métro et à la proximité de Châtelet - Les Halles.
Le secteur Aboukir – Sentier se distingue par son dynamisme entrepreneurial, mêlant immeubles de bureaux, start-up rebaptisant le quartier « Silicon Sentier », agences créatives et adresses tertiaires reconnues, offrant un environnement professionnel innovant et attractif.
Les informations sur les risques auxquels ce bien est exposé sont disponibles sur le site Géorisques : www.georisques.gouv.fr
Surface disponible
DPE
Diagnostic en cours de réalisation
Localisation et Transports
. Métro : Bonne Nouvelle (lignes 8, 9)
. Métro : Strasbourg - Saint Denis (lignes 8, 9)
. Métro : Réaumur - Sébastopol (lignes 3, 4)
Consultant

Mayeul De saqui
Détails de l'agent


