Bureaux
Réf. 98562Mise à jour
54-56 RUE D'ABOUKIR
PARIS, 75002
720 € / m²
- Surface1 340 m² divisibles dès 260 m² (env. 134 postes)
- DisponibilitéNous consulter
- Description
- Prestations & Services
- DPE
- Localisation et Transports
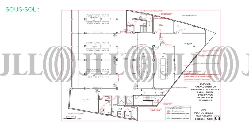
- Plans
- Brochure
- Consultant
- Nous contacter
Description
A l’angle de la rue d’Aboukir et de la rue Réaumur, en plein cœur du 2ème arrondissement, JLL vous propose à la location un immeuble de bureaux de 2 050 m² intégrant un espace sous-sol de 700 m², en cours de rénovation. L’immeuble va être entièrement restructuré par le propriétaire (huisseries, façades, aménagement, etc…)
Les informations sur les risques auxquels ce bien est exposé sont disponibles sur le site Géorisques : www.georisques.gouv.fr
Surface disponible
DPE
Diagnostic en cours de réalisation
Localisation et Transports
. Métro : Sentier (ligne 3)
. Bus : Lignes 20, 39
. Bus : Lignes 20, 39
Consultant

Paul Dussart
Détails de l'agent
Informations Marchés
Le marché locatif
54-56 RUE D'ABOUKIR, 75002
Loyer moyen *
720 € / m²
71 offres à louerEn savoir plus* Moyenne calculée sur la base des transactions réalisées au cours des 12 derniers mois







