Bureaux
Réf. 965631 BOULEVARD DE LA MADELEINE
PARIS, 75001
860 € / m²
- Surface832 m² divisibles dès 416 m² (env. 83 postes)
- DisponibilitéNous consulter
- Description
- Prestations & Services
- DPE
- Localisation et Transports
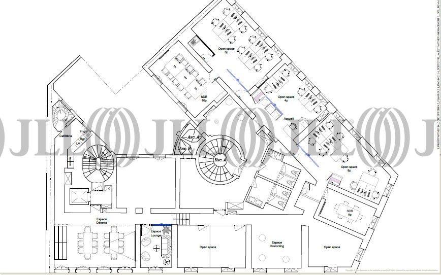
- Plan
- Brochure
- Consultant
- Nous contacter
Description
Nous vous proposons à la location, dans un immeuble d'angle situé entre les places de l'Opéra et de la Madeleine, une surface de bureaux en excellent état d’usage, climatisée, offrant de beaux volumes et une excellente luminosité.
Les informations sur les risques auxquels ce bien est exposé sont disponibles sur le site Géorisques : www.georisques.gouv.fr
- TEOM, taxe balayage et frais de rôle inclus dans les charges
Surface disponible
DPE
Diagnostic en cours de réalisation
Localisation et Transports
. Métro : Madeleine (lignes 8, 12 et 14)
. RER A : Auber
. SNCF : Gare St Lazare
. Bus : Nombreuses lignes
. RER A : Auber
. SNCF : Gare St Lazare
. Bus : Nombreuses lignes
Consultant

Ambroise Grymonprez
Détails de l'agent
Informations Marchés
Le marché locatif
1 BOULEVARD DE LA MADELEINE, 75001
Loyer moyen *
860 € / m²
25 offres à louerEn savoir plus* Moyenne calculée sur la base des transactions réalisées au cours des 12 derniers mois







