Bureaux
Réf. 8082913-15 BOULEVARD DE LA MADELEINE
PARIS, 75001
550 € / m²
- Surface356 m² (env. 35 postes)
- Disponibilité3e trim. 2026
- Description
- Prestations & Services
- DPE
- Localisation et Transports
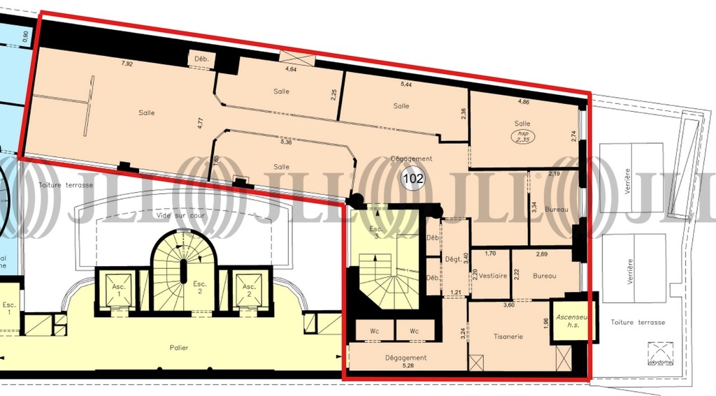
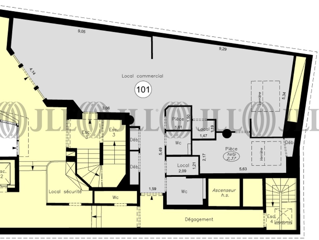
- Plans
- Brochure
- Consultant
- Nous contacter
Description
Idéalement situé à toute proximité immédiate de la Place de la Madeleine, découvrez un duplex ERP en rez-de-chaussée et R+1.
Les informations sur les risques auxquels ce bien est exposé sont disponibles sur le site Géorisques : www.georisques.gouv.fr
Surface disponible
DPE
Diagnostic en cours de réalisation
Localisation et Transports
. Métro : Madeleine (Lignes 8, 12, 14) à 141m
. Métro : Havre-Caumartin (lignes 3, 9) à 485m
. RER A : Auber à 402m
. SNCF : Gare Saint-Lazare
. Bus : nombreuses lignes
. Métro : Havre-Caumartin (lignes 3, 9) à 485m
. RER A : Auber à 402m
. SNCF : Gare Saint-Lazare
. Bus : nombreuses lignes
Consultant

Henri Weydert
Détails de l'agent
Informations Marchés
Le marché locatif
13-15 BOULEVARD DE LA MADELEINE, 75001
Loyer moyen *
550 € / m²
24 offres à louerEn savoir plus* Moyenne calculée sur la base des transactions réalisées au cours des 12 derniers mois






