17 RUE D'ORLEANS
NEUILLY SUR SEINE, 92200
520 € / m²
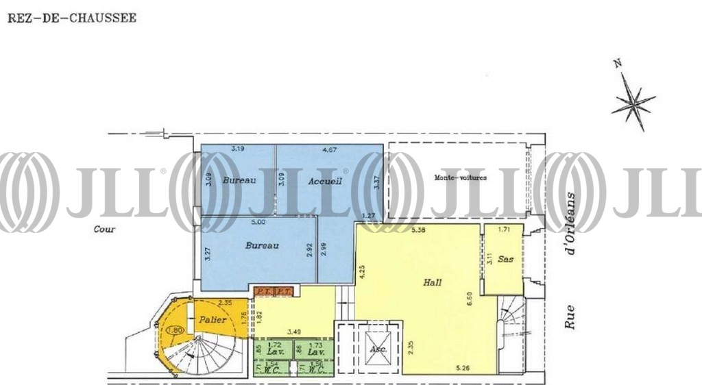
- Surface408 m² divisibles dès 139 m² (env. 40 postes)
- DisponibilitéImmédiate
- Description
- Prestations & Services
- DPE
- Localisation et Transports
- Plans
- Brochure
- Consultant
- Nous contacter
Description
JLL vous propose des Bureaux à louer au 17 RUE D'ORLEANS, NEUILLY SUR SEINE. Idéalement situés au coeur de Neuilly Sur Seine (92200) à proximité immédiate de la station de métro Les Sablons Ligne 1, ces bureaux à louer, disponibles immédiatement, offrent une superficie totale de 408 m², divisible dès 139 m². Dans un immeuble proposant un accès sécurisé avec visiophone et Vigik, ces locaux sauront vous séduire par leurs prestations qualitatives. L'immeuble comprend un hall d'entrée, un ascenseur desservant directement les surfaces, un jardin commun au RDC, un duplex pouvant se diviser au 2 et 3ème étage. Les locaux sont disponibles immédiatement mais pourront faire l'objet d'une rénovation de la part du propriétaire.
Bénéficiant d'un accès idéal, à proximité du métro Les Sablons (Ligne 1), du RER C (Porte Maillot), de plusieurs lignes de bus (43, 71, 73, 82) et de l'accès routier par le Boulevard périphérique Porte Maillot.
Les informations sur les risques auxquels ce bien est exposé sont disponibles sur le site Géorisques : www.georisques.gouv.fr
Surface disponible
DPE
Diagnostic en cours de réalisation
Localisation et Transports
. RER C : Porte Maillot . Bus : Lignes 43, 71, 73, 82 . Accès routiers : Boulevard périphérique Porte Maillot
Consultant

Maxime Stora
Détails de l'agent







