Bureaux
Coworking / Flex
Réf. 75321DESKEO - NEUILLY SUR SEINE
145 AVENUE CHARLES DE GAULLE
NEUILLY SUR SEINE, 92200
560 € / m²
- Surface1 400 m² (env. 140 postes)
- DisponibilitéImmédiate
- Description
- Prestations & Services
- DPE
- Localisation et Transports
- Plans
- Brochure
- Consultant
- Nous contacter
Description
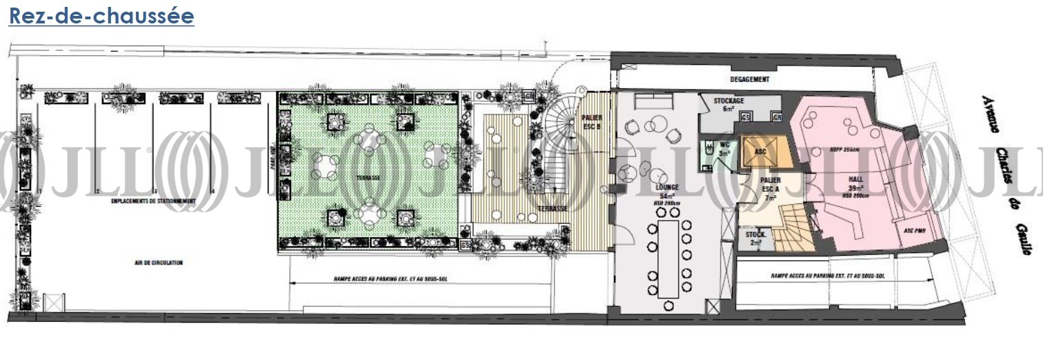
Immeuble indépendant situé au coeur de Neuilly-sur-Seine, sur l'axe Charles de Gaulle reliant Paris à La Défense, à proximité immédiate du métro ligne 1 "Pont de Neuilly" ou "Les Sablons". L'immeuble va faire l'objet d'une rénovation complète et disposera d'une grande terrasse et d'une cafétéria aménagée.
Les informations sur les risques auxquels ce bien est exposé sont disponibles sur le site Géorisques : www.georisques.gouv.fr
Surface disponible
DPE
Diagnostic en cours de réalisation
Localisation et Transports
. Métro : Pont de Neuilly - Les Sablons (ligne 1)
. RER A : La défense
. RER C : Porte Maillot
. Bus : Lignes 43, 82, 93, 157, 158, 174, 176
. Accès routier : Boulevard périphérique Porte Maillot, A14, A86
. Vélib : 153 bis avenue Charles de Gaulle à 100 mètres
. Autolib : 64 boulevard Maurice Barres
. RER A : La défense
. RER C : Porte Maillot
. Bus : Lignes 43, 82, 93, 157, 158, 174, 176
. Accès routier : Boulevard périphérique Porte Maillot, A14, A86
. Vélib : 153 bis avenue Charles de Gaulle à 100 mètres
. Autolib : 64 boulevard Maurice Barres
Consultant

Julie Klein
Détails de l'agent
Informations Marchés
Le marché locatif
145 AVENUE CHARLES DE GAULLE, 92200
Loyer moyen *
560 € / m²
43 offres à louerEn savoir plus* Moyenne calculée sur la base des transactions réalisées au cours des 12 derniers mois







