Bureaux
Réf. 982924 RUE DE L'ABBE HAZARD
NANTERRE, 92000
220 € / m²
- Surface767 m² (env. 76 postes)
- DisponibilitéImmédiate
- Description
- Prestations & Services
- DPE
- Localisation et Transports
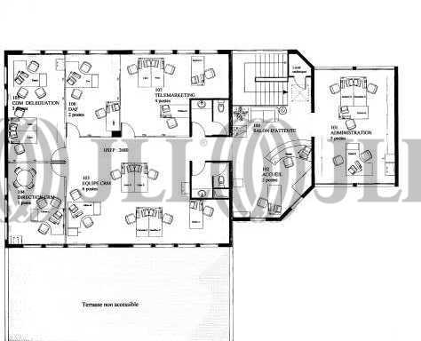
- Plans
- Brochure
- Consultant
- Nous contacter
Description
A toute proximité de la Place de la Boule et au pied de l’Avenue Georges Clemenceau, nous proposons à la location une surface de bureaux plug and play. Dans cette immeuble aux charges maitrisées, le loyer est également attractif.
Les informations sur les risques auxquels ce bien est exposé sont disponibles sur le site Géorisques : www.georisques.gouv.fr
Surface disponible
DPE
Diagnostic en cours de réalisation
Localisation et Transports
. RER A : Nanterre Ville ou La Défense à 10 min en bus
. Bus : 157, 158, 258
. Bus : 157, 158, 258
Consultant

Clémentine Houet
Détails de l'agent
Informations Marchés
Le marché locatif
4 RUE DE L'ABBE HAZARD, 92000
Loyer moyen *
220 € / m²
49 offres à louerEn savoir plus* Moyenne calculée sur la base des transactions réalisées au cours des 12 derniers mois



