Bureaux
Réf. 95785GREEN AVENUE (EX : LE VERMONT)
119-125 RUE DES 3 FONTANOT
NANTERRE, 92000
Nous consulter
- Surface19 141 m² divisibles dès 1 000 m² (env. 1 914 postes)
- DisponibilitéImmédiate
- Description
- Prestations & Services
- DPE
- Localisation et Transports
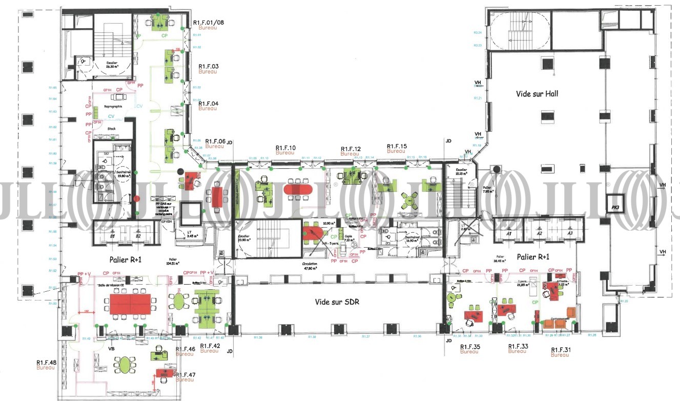
- Plans
- Brochure
- Consultant
- Nous contacter
Description
A proximité immédiate de la Défense et du RER A, nous vous proposons à la location un immeuble indépendant de 19 000 m². Cette opération dispose de grands plateaux ergonomiques de 1 300 m² environ organisé autour d'un vaste patio central.
Les informations sur les risques auxquels ce bien est exposé sont disponibles sur le site Géorisques : www.georisques.gouv.fr
Surface disponible
DPE
Diagnostic en cours de réalisation
Localisation et Transports
. RER A : Nanterre Préfecture . Bus : lignes 358, 160, 541 . Tramway T2 : Grande Arche . Accès routiers : Boulevard circulaire, A86, A14
Consultant

Gauthier Bongrand
Détails de l'agent
Informations Marchés
Le marché locatif
119-125 RUE DES 3 FONTANOT, 92000
46 offres à louerEn savoir plus
* Moyenne calculée sur la base des transactions réalisées au cours des 12 derniers mois






