94 RUE DES SORINS
MONTREUIL, 93100
250 € / m²
- Surface252 m² (env. 25 postes)
- DisponibilitéImmédiate
- Description
- Prestations & Services
- DPE
- Localisation et Transports
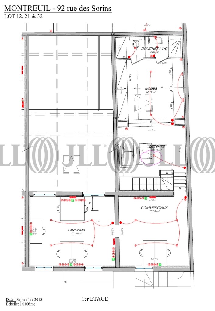
- Plans
- Brochure
- Consultant
- Nous contacter
Description
Immeuble indépendant mixte (activité et bureaux) à louer sur la commune de Montreuil (93100). En fond de cour, les locaux atypiques mettent en valeur un style industriel. Les plateaux fonctionnent autant en open-space qu'en bureaux cloisonnés (cloisons vitrées), permettant une flexibilité d'aménagement pour le futur locataire. Les bureaux sont accessibles via la ligne 9 du Métro à la station "Robespierre", la ligne T3b du Tramway à la station "Porte de Montreuil" mais également par de nombreuses lignes de bus. L'accès routier se fait par le boulevard périphérique à la "Porte de Montreuil. L’immeuble est réparti sur deux niveaux. Le rez-de-chaussée est une surface d’activité pouvant accueillir des industries légères et des studios. Le premier étage est une surface de bureaux semi-cloisonnés et dispose d’une cuisine équipée. JLL vous propose le seul immeuble indépendant à la location sur la commune de Montreuil.
Les informations sur les risques auxquels ce bien est exposé sont disponibles sur le site Géorisques : www.georisques.gouv.fr
Surface disponible
DPE
Diagnostic en cours de réalisation
Localisation et Transports
. Bus : lignes 102, 308
. Tramway T3b : Porte de Montreuil
. Accès routier : Boulevard périphérique "Porte de Montreuil" et "Bagnolet"
. Vélib' : 184 rue Etienne Marcel
. Autolib' : 60 rue Edouard Vaillant
Consultant

Arnaud Thibaud
Détails de l'agent







