COWORKING - AGRIPPA
19 RUE DE LA GARE
LYON, 69009
Nous consulter
- Surface637 m² divisibles dès 10 m² (env. 63 postes)
- DisponibilitéImmédiate
- Description
- Prestations & Services
- DPE
- Localisation et Transports
- Plan
- Brochure
- Consultant
- Nous contacter
Description
Bureaux à louer à COWORKING - AGRIPPA, 19 RUE DE LA GARE, LYON (69009).
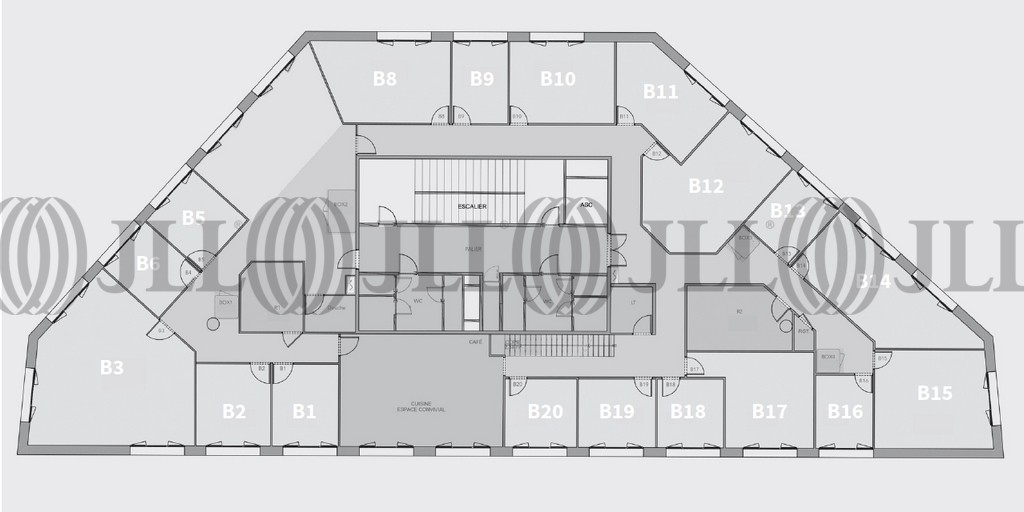
Découvrez ce bâtiment indépendant, offrant un espace de coworking d'une surface totale de 637 m², immédiatement disponible et divisible à partir de 10 m². Ce plateau nouvellement aménagé regroupe 20 bureaux privatifs (de 10 à 50 m²), tous équipés de Wi-Fi, RJ45, imprimante et climatisation. Le bâtiment est unique en son genre, bénéficiant des labels HQE Bat Durable Très Performant.
Des services inclus sont proposés : conciergerie, accès aux parties communes, bulles téléphoniques, connexion wifi via fibre, et toutes charges locatives incluses. Des services additionnels sur devis sont également disponibles tels que la domiciliation, téléphonie fixe, café supplémentaire, mobilier sur mesure, ainsi que des prestations de déménagement.
Idéalement situé à Lyon, à proximité de la Gare de Vaise et à 20 minutes en métro de la Gare de Part-Dieu, le bâtiment offre un accès rapide à différents modes de transport (métro D, bus, vélo’v) et aux autoroutes A6 et A7. Des parkings sont également disponibles.
Les informations sur les risques auxquels ce bien est exposé sont disponibles sur le site Géorisques : www.georisques.gouv.fr
Surface disponible
DPE
Diagnostic en cours de réalisation
Localisation et Transports
Métro D - de nombreux bus Gare TER Vaise à 850 m
Gare TGV / TER de Part-Dieu à 20 min en métro Bus lignes C6 - 5 : arrêt Berjon/St Simon à 80 m Accès rapide au périphérique Nord (TEO) et aux autoroutes A6 et A7
Station vélo’v à 350 m
Consultant

Martin Mirandon
Détails de l'agent




